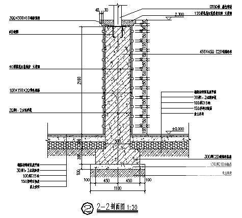
广场玻璃亭施工详图纸平面图及剖面图,立面图
- 发布时间:2022-02-20
- 评论次数:0
- 浏览次数:0
- 文件大小:0.07 MB
- 收藏次数:0
- 
								文件名称: 附件-996007795096707988.rar 附件-996007795096707988.rar
								玻璃亭施工图下载
							
						- 平顶玻璃亭CAD施工图纸
- 玻璃亭结构大样CAD图纸
- 玻璃亭施工大样CAD图纸
- 特色玻璃亭施工CAD详图纸
- 玻璃亭详细CAD施工图纸设计
- 水雾玻璃亭设计CAD施工图纸
- 小区特色玻璃亭施工详细设计CAD图纸
- 玻璃顶木亭施工CAD详图纸
- 现代风格玻璃亭施工dwg和CAD图纸
- 小区水雾玻璃亭施工详细设计CAD图纸(内部结构)
- 特色玻璃亭施工详细设计CAD图纸(节点大样图)
- 现代玻璃亭施工详细设计CAD图纸(屋顶平面图)
- 小区圆亭、方亭平台结构施工图纸.
- 景观亭施工图纸
- 四角亭六角亭八角亭四角双亭连廊亭施工CAD大样图纸
- 小区保安亭CAD施工图纸
- 木质方亭CAD施工图纸
- 情侣亭CAD施工图纸
- 景观休息亭CAD施工图纸
- 亭廊景观CAD施工图纸
全部评论
						
							评论网友评论仅友表达个人看法,并不表明本站同意其观点,不得发布违反法律法规的内容!
						
						
 
	              	 
	              	