admin
|
退出
|
登录
|
注册
|
0
积分
|
赚取积分
|
VIP领取积分
|
帮助中心
|
首页
【知石网】是一个专业资料分享学习平台,本站提供大量施工技术文档和设计下载。
首页
施工图纸
施工方案
施工组织
施工交底
合同表格
建筑结构
节点详图
毕业设计
平面图纸
景观设计
电气知识
环保知识
您当前位置:
首页
»
其他文档
»
其他资料
»
木质方亭CAD施工图纸
木质方亭CAD施工图纸
资料简介
赚取积分
搜索更多资源
附件详情
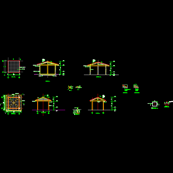
木质方亭施工图,包括木质方亭施工图两张图纸,共一个CAD文件。
以下是附件的其中一部分截图,共1张,您也可以
搜索
更多您想要的资源
第 1 张图
以上是部分截图,请下载附件后查看完整高清内容
发布时间:2023-12-28
评论次数:0
浏览次数:0
文件大小:0.21 MB
收藏次数:0
文件名称:
附件-995950569858979756.rar
下载信息
加入收藏
赚取积分
立即下载
对不起,系统繁忙,请稍后再试,或联系管理员
对不起,您的积分余额不足,请
充值积分
恭喜购买成功!请
下载文件
相关下载
木质方亭施工CAD详图纸
木质方亭施工CAD图纸
酒店热带木质景观亭
四角木质临水方亭详细设计CAD图纸
热带风格木质景观亭
酒店木质景观亭建筑CAD施工方案图纸
木质六角亭施工CAD详图纸
方亭施工CAD图纸
方亭施工CAD图纸
方亭施工CAD图纸
方亭施工CAD图
中式现代方亭
木质景观亭节点CAD图纸大样图纸
公园木质景观亭设计CAD图纸详图
小区圆亭、方亭平台结构施工图纸.
特色方亭施工CAD详图纸
方亭CAD施工方案图纸
情侣方亭施工CAD图纸
方亭施工全套CAD图纸
木方亭施工详细设计CAD图纸
全部评论
评论
网友评论仅友表达个人看法,并不表明本站同意其观点,不得发布违反法律法规的内容!
下载排行
四方亭施工CAD详图纸
木方亭完整施工CAD详图纸
休闲木方亭施工CAD详图纸
方亭CAD施工大样图
欧式方亭施工CAD详大样图
日式方亭CAD施工大样图.dwg
方亭CAD施工大样图.dwg
超五星级酒店F区木质景观亭
四方亭节点大样CAD图纸
木质花架施工CAD图纸
下载推荐
木质牌坊施工大样
木质平台施工大样
古建亭子施工图纸集,八角四方重檐亭,五角重檐亭等
水池边木质铺地
木质花架CAD施工图纸
木质座椅施工大样CAD图纸
木质花架施工CAD详图纸
特色木质花架施工CAD详图纸
木质座椅施工CAD详图纸
木质凉亭施工CAD详图纸
网站首页
|
信息产业部备案/许可证编号:苏ICP备2021052619号-1
苏公网安备:32041102001778号
本站所有内容均由网友自主分享,仅供学习和参考,如有侵权内容或者违法行为,请及时联系站长删除。