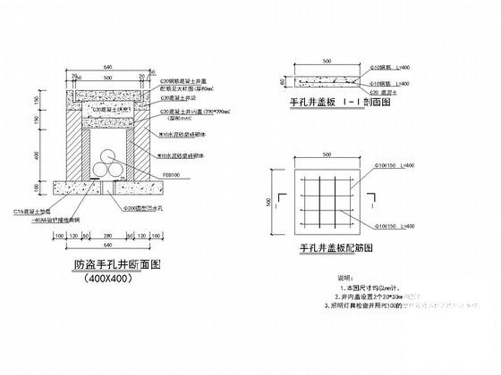
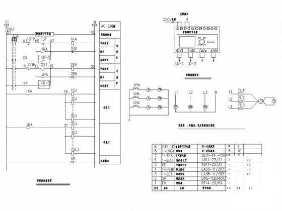
城市主干路照明工程施工大样图设计平面图,照明控制原理图
- 发布时间:2021-12-18
- 评论次数:0
- 浏览次数:0
- 文件大小:8.83 MB
- 收藏次数:0
-
文件名称:
附件-996008668985059875.rar
城市主干路照明设计图下载
- 城市主干路双侧对称照明工程设计套大样图
- 城市主干路道路照明工程施工图纸设计.
- 城市主干路交通标志版面设计图纸CAD
- 城市主干路改扩建工程初步设计图纸125张.
- 城市主干路改造工程道路平面交叉设计图纸.dwg
- 城市主干路照明工程施工大样图设计系统图,示意图
- 城市主干路双侧对称照明工程设计套图纸(全长约5700米).dwg
- 45m宽城市主干路工程施工方案图纸(73张)(cad设计图)
- 双向八车道城市主干路桥梁工程设计图纸.dwg
- 城市支路道路照明工程施工方案图纸(cad设计图)
- 城市道路照明设计
- 城市绿化照明布置CAD图纸
- 城市主干路工程全套施工大样图路面结构
- 城市主干路燃气工程施工大样图设计平面图
- 城市主干路交通工程标志标线施工大样图设计
- 城市主干路渐变段交通工程施工图纸设计2021cad
- 城市主干路道路工程CAD施工图纸设计
- 城市主干路土方路基试验段专项施工方案
- 城市主干路消防工程CAD施工图纸设计(指示牌制作)
- 城市主干路交通工程CAD施工大样图设计52张
全部评论
评论网友评论仅友表达个人看法,并不表明本站同意其观点,不得发布违反法律法规的内容!
