admin
|
退出
|
登录
|
注册
|
0
积分
|
赚取积分
|
VIP领取积分
|
帮助中心
|
首页
【知石网】是一个专业资料分享学习平台,本站提供大量施工技术文档和设计下载。
首页
施工图纸
施工方案
施工组织
施工交底
合同表格
建筑结构
节点详图
毕业设计
平面图纸
景观设计
电气知识
环保知识
您当前位置:
首页
»
其他文档
»
其他资料
»
中桥设计图纸
中桥设计图纸
资料简介
赚取积分
搜索更多资源
附件详情
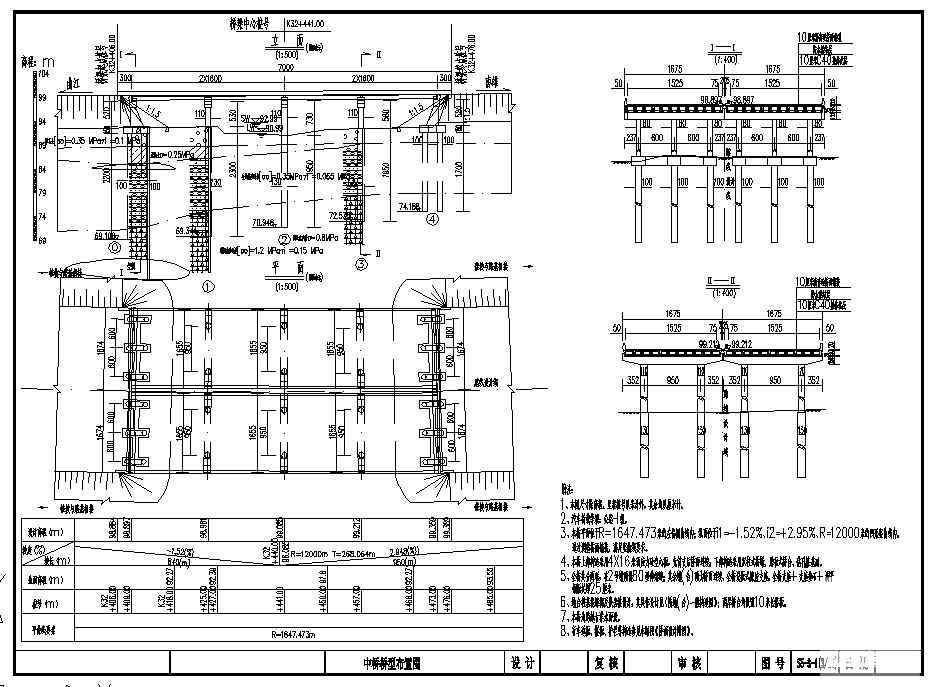
某中型桥设计图纸,长度70米。图纸内容包括:桥型布置图,平面板块布置图,桥墩、桥台一般构造图,桥台肋板、耳背墙、台帽、桩基、承台钢筋构造图,桥墩及盖梁钢筋构造图。
以下是附件的其中一部分截图,共4张,您也可以
搜索
更多您想要的资源
第 1 张图
第 2 张图
第 3 张图
第 4 张图
以上是部分截图,请下载附件后查看完整高清内容
发布时间:2021-12-11
评论次数:0
浏览次数:0
文件大小:1.07 MB
收藏次数:0
文件名称:
附件-995798865780967577.rar
下载信息
加入收藏
赚取积分
立即下载
对不起,系统繁忙,请稍后再试,或联系管理员
对不起,您的积分余额不足,请
充值积分
恭喜购买成功!请
下载文件
相关下载
国外中桥设计CAD图纸
国外中桥设计CAD图纸
中桥设计图纸.dwg
中桥竣工CAD图纸
中桥成套CAD图纸
中桥竣工CAD图纸
中桥全套设计图纸.dwg
高速公路中桥CAD图纸
景区中桥CAD施工图纸.dwg
二级公路中桥设计CAD图纸(桩基础)
6跨13米桥中桥设计CAD图纸
公路改建工程中桥设计CAD图纸
二级公路中桥全套设计CAD图纸
6跨13米桥中桥设计CAD图纸
张家港市区中桥设计CAD图纸
20m跨径中桥设计格式图纸
三座中桥设计图纸.dwg
20m跨径中桥设计图纸.
三线中桥施工组织设计
张唐铁路中桥施工组织设计
全部评论
评论
网友评论仅友表达个人看法,并不表明本站同意其观点,不得发布违反法律法规的内容!
下载排行
中桥CAD图纸竣工图纸(预应力空心板)
高速公路大中桥桥台通用CAD图纸
桓台县中桥CAD施工图纸
百富村中桥CAD施工图纸
国道中桥桥面铺装施工方案
中桥下部结构施工方案.doc
中桥设计CAD图纸(桥型布置图纸)(钢筋构造图)
大、中桥伸缩缝节点构造详细设计CAD图纸
公路改建工程中桥设计CAD图纸(扩大基础)
二级公路跨河中桥施工设计图纸.
下载推荐
CAD中桥32m简支箱梁贝雷架设计施工方案
框架中桥CAD图纸竣工图(21页图纸)(水泥搅拌桩)
PC简支组合箱梁中桥CAD施工图纸
3跨16米中桥全套CAD施工图纸.dwg
一套中桥20m普通钢筋混凝土T梁设计图纸
大兴安岭铅锌钼多金属矿道路工程中桥全套设计图纸.dwg
框架中桥施工作业指导书(17页)
新建铁路框架中桥竣工图(31页大样图,中铁).dwg
先张法预应力空心板中桥施工方案
铁路桥梁施工方案(双线中桥特大桥)
网站首页
|
信息产业部备案/许可证编号:苏ICP备2021052619号-1
苏公网安备:32041102001778号
本站所有内容均由网友自主分享,仅供学习和参考,如有侵权内容或者违法行为,请及时联系站长删除。