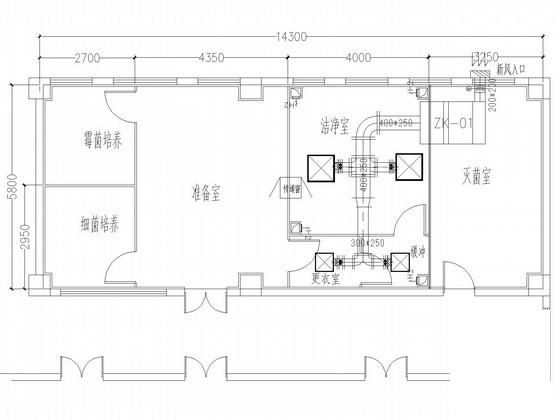
实验室洁净空调系统设计施工大样图
- 发布时间:2021-11-24
- 评论次数:0
- 浏览次数:0
- 文件大小:1.21 MB
- 收藏次数:0
-
文件名称:
附件-995858560079075609878.rar
实验室空调系统设计下载
- 实验室通风及净化空调系统设计施工图纸
- 4层实验室地源热泵空调系统设计施工图纸
- 科研实验室恒温恒湿空调系统设计施工图纸
- 高校纳米实验室空调及自控系统设计图纸
- 实验室净化空调设计CAD图纸
- 实验室空调工程设计CAD图纸
- 大学实验室净化空调设计CAD图纸.dwg
- 医院实验室空调通风施工图纸
- 实验室恒温恒湿空调施工图纸
- 实验室仪器室空调净化施工图纸
- 大学实验室空调图(5页CAD图纸)
- 20层实验室通风及空调平面.dwg
- 医院中心血站实验室空调通风及防排烟系统设计施工图纸
- 洁净实验室设计暖通空调设计CAD施工图纸
- 洁净实验室设计暖通空调设计CAD施工图纸
- 实验室净化空调设计CAD施工图纸,含设计说明.dwg
- 2层医院动物实验室净化空调设计施工图纸
- 4层实验室中央空调设计施工大样图
- 研究所实验室净化空调设计施工图纸
- 实验室变频空调工程设计CAD施工图纸
全部评论
评论网友评论仅友表达个人看法,并不表明本站同意其观点,不得发布违反法律法规的内容!
