住宅小区电气施工全图纸

电气设计说明

一. 设 计 范 围:设计范围为某居住小区工程单体建筑内的电照'通讯'网络'有线电视及对讲防盗门设计.

二. 设 计 依 据:低压配电设计规范"GB 50054-95"供配电系统设计规范"GB 50052-95"民用建筑电气设计规范"JGJ/T16-92"汽车库'修车库'停车场设计防火规范:"GB50067-97"

三. 照 明 部 分:

1. 该项目中,车库与各单元电源分别引自电业局供电线路T接箱.在各单元的一层楼梯间设住宅总电度表箱,住户的电度表集中设于此箱中.由电业部门直接计费.车的电度表箱,集中设于一层公共楼梯间内嵌墙或挂式安装底边距地1。2m.由电业部门直接计费.

2. 照明系统线路采用BV-500V型电线,穿高强冷弯难燃型PVC管暗敷(进线电缆保护管为水煤气热镀锌钢管).

3. 电度表箱为嵌墙安装'底边距地面高度1.0m,其它器件底边距地面安装高度于下:照明开关1.4m.卫生间插座1.8m.厨房插座1.4m排油烟机插座1.8m空调插座2.0m.其它插座0.3m(另有说明除外).漏电保安箱底边距地1.8m.排气扇2.2M(只留包扎线端)

4. 卫生间等较潮湿处的灯具均为瓷质灯口.卫生间的插座为防水式,灯具为壁装.距地高度2.1m.

四. 通 讯 部 分

1. 电话.网络有线电视进线为电缆进线.

2. 电话全部为外线,接线箱底边距地0.5m;房间内电话网络插座底边距地0.3m.二层以上分线盒底边距地1.8m.

3. 电话及有线电视进线电缆的具体方位,由施工管理部门会同市有关部门共同确定.

4.除进线电缆保护管为水煤气热镀锌钢管外,其它均为PVC管.

5. 有线电视箱底边距地1.8m.插座底边距地0.3m.6.住宅对讲系统图详见青岛市设计标准"青岛市住宅多功能分户门楼寓对讲电控防盗设计安装通用图"(QJ961-15.16)

五. 避 雷 接 地 部 分

1. 本建筑属第三类防雷建筑物.零线重复接地及防直击雷接地共用一组接地装置.

2. 所有正常不带电的用电设备金属外壳.穿线钢管.电缆金属护套.金属构件及建筑物内各种金属管线(含煤气管道,暖气管及通气管等)均须接地.

3. 凡突出屋面的金属物体.烟囱及通风道等均须做防雷处理.

4. 进出建筑物的各种金属管道,须在进出处与接地装置连接.

5. 卫生间做等电位连接

6 所有防雷装置的各种金属构件必须热镀锌.

7 该项目用电保护及接地采用TN-C-S系统.

等电位联结做法图

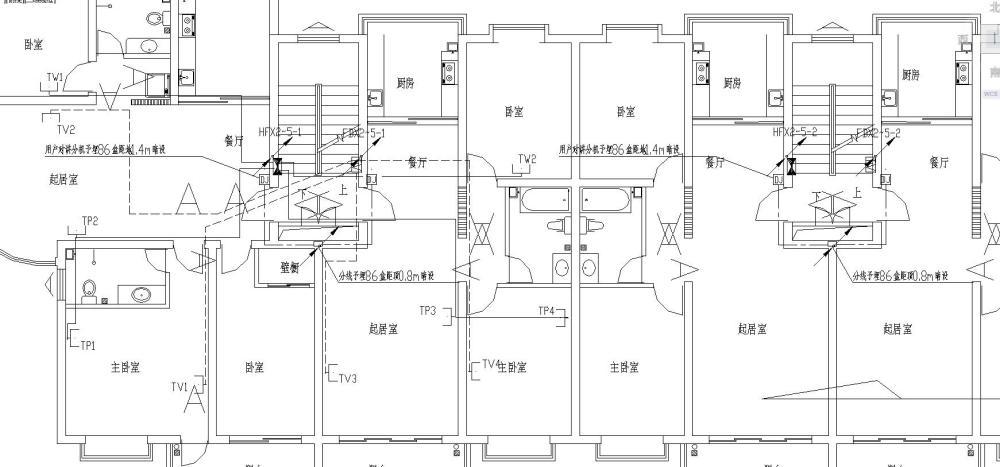
电话、网络、有线电视平面图

防雷接地平面图

配电系统图

照明与插座平面图


以下是附件的其中一部分截图,共5张,您也可以 搜索 更多您想要的资源
  • 住宅小区电气 - 1
    住宅小区电气 - 1
  • 住宅小区电气 - 2
    住宅小区电气 - 2
  • 住宅小区电气 - 3
    住宅小区电气 - 3
  • 住宅小区电气 - 4
    住宅小区电气 - 4
  • 住宅小区电气 - 5
    住宅小区电气 - 5
以上是部分截图,请下载附件后查看完整高清内容
网站首页  | 
本站所有内容均由网友自主分享,仅供学习和参考,如有侵权内容或者违法行为,请及时联系站长删除。