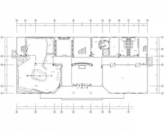
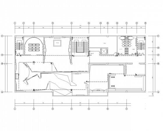
党史陈列馆事故照明及消防图纸
- 发布时间:2021-12-11
- 评论次数:0
- 浏览次数:0
- 文件大小:0.59 MB
- 收藏次数:0
- 
								文件名称: 附件-996095958089890907.zip 附件-996095958089890907.zip
								相关下载
							
						- 电信公司油机房照明及消防CAD图纸
- 事故煤泥池及泵房工程设计图纸
- 建筑施工高处坠落事故分析及预防对策.pdf
- 事故照明切换装置原理接线CAD图纸
- 水电站事故照明切换屏接线CAD图纸
- 桥梁事故导流槽及应急事故池施工大样图cad平面布置图及立面图
- 信息大楼照明和消防应急疏散照明电气施工图纸cad平面图及系统图
- 25层办公楼消防报警及照明电气毕业设计方案(图纸
- 4层体育局消防报警及照明图纸(剪力墙结构)
- 洗浴中心消防联动及应急照明设计图纸(设计说明)
- 电信公司油机房照明及消防设计CAD图纸(火灾自动报警)
- 洗浴中心的消防联动及应急照明CAD施工图纸
- 洗浴中心消防联动及应急照明设计CAD图纸
- 10KV配电室事故报警控制箱原理及接线CAD图纸
- 南区地下室N2-N4电消防及照明平面图
- 工程5号楼照明消防CAD图纸
- 消防站全套电气图纸(照明设计)
- 矿井食堂及班中餐照明图纸.
- 应急事故池详施工图纸CAD
- 汽车公司事故水池结构CAD图纸
全部评论
						
							评论网友评论仅友表达个人看法,并不表明本站同意其观点,不得发布违反法律法规的内容!
						
						
 
	              	 
	              	