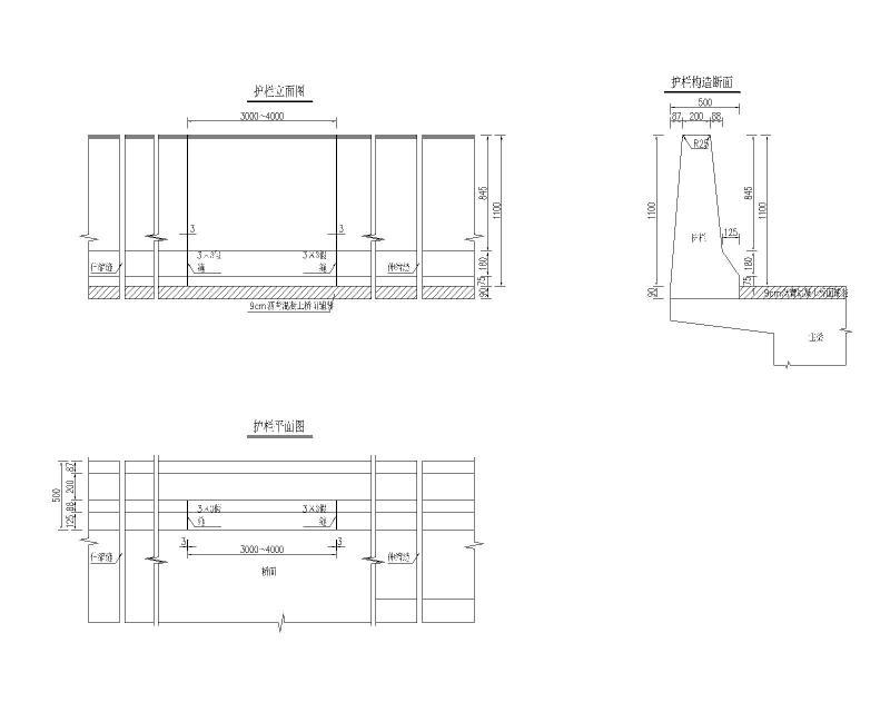
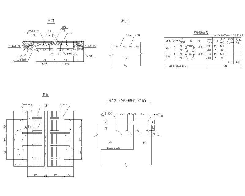
4跨实腹式圬工连续拱桥病害处治施工大样图cad
- 发布时间:2024-01-02
- 评论次数:0
- 浏览次数:0
- 文件大小:10.28 MB
- 收藏次数:0
-
文件名称:
附件-996867667556785858.zip
相关下载
- 六跨实腹式圬工板拱桥加固设计图纸(破损裂缝露筋).
- 26.2m单跨实腹式圬工拱桥加宽改造施工大样图cad
- 1×5m单跨实腹式圬工板拱桥维修加固施工大样图cad
- 30m单跨空腹式圬工拱桥病害处治施工图纸cad构造图
- 3×6m跨径实腹式圬工板拱桥加固改造施工图纸cad构造图
- 8m单跨实腹式圬工拱桥维修加固施工图纸cad构造图
- 四跨实腹式圬工连续拱桥维修加固施工图纸cad构造图及平面图,剖面图
- 增大截面法实腹式圬工板拱桥加固施工图纸cad构造图
- 5跨钢筋砼实腹式圆弧景观拱桥完整设计CAD图纸(17张)
- 实腹式圬工结构桥梁加固施工设计图纸.
- 三跨实腹拱桥CAD施工图纸(黄金分割).dwg
- 三孔钢筋混凝土实腹式拱桥CAD施工图纸(说明).dwg
- 2×12m跨径单幅圬工拱桥病害整治施工图纸cad布置图
- 1×20m单跨石砌板拱桥病害处治施工图纸cad构造图
- 10m实腹式等截面圆弧拱桥成套CAD设计图纸.dwg
- 1-6m实腹式石拱桥加固施工大样图(18张).
- 28.153528.15m三跨实腹式钢筋混凝土板式拱桥风雨廊人行廊桥大样图.dwg
- 28.153528.15m三跨实腹式钢筋混凝土板式拱桥风雨廊人行廊桥CAD大样图55张
- 五跨单层实腹式门式轻钢结构设计施工图纸
- 单跨实腹式门式刚架结构厂房结构设计施工图纸
全部评论
评论网友评论仅友表达个人看法,并不表明本站同意其观点,不得发布违反法律法规的内容!
