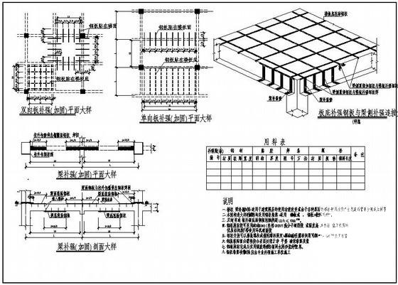
梁板加固构造详图纸cad
- 发布时间:2024-01-02
- 评论次数:0
- 浏览次数:0
- 文件大小:0.06 MB
- 收藏次数:0
-
文件名称:
附件-996057099056886687.rar
相关下载
- 梁板加固构造大样
- 梁板补强(加固)大样(贴钢板)节点构造CAD详施工图纸
- 梁板加固构造大样_CAD
- 办公楼加固施工方案(梁板加固)
- 无粘结预应力梁及板大样节点构造详施工图纸
- 有粘结预应力梁及板大样节点构造详施工图纸
- 基础梁防水构造详cad图纸
- 无粘结、有粘结预应力梁板节点构造CAD详大样图
- 板加固示意节点构造详图纸
- 110KV变电站碳纤维加固梁板节点构造详图纸
- 结构加固构造详细设计CAD图纸(梁、柱、板、基础、墙体等)
- 预制板、承重梁加固节点构造CAD详图纸
- 梁板补强贴钢板加固节点构造详图纸cad
- 梁板裂缝结构加固施工图纸
- 结构梁板加固节点CAD详图纸
- 拆梁加固节点构造详图纸
- 梁加固节点构造详图纸cad
- 工程混凝土梁板加固施工方案
- 梁板墙预留孔洞加固做法cad
- 梁钢板加固构造大样节点构造详图纸cad
全部评论
评论网友评论仅友表达个人看法,并不表明本站同意其观点,不得发布违反法律法规的内容!
