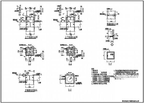
带约束拉杆方钢管柱接头构造详图纸cad
- 发布时间:2024-01-02
- 评论次数:0
- 浏览次数:0
- 文件大小:0.07 MB
- 收藏次数:0
- 
								文件名称: 附件-996057099788890855.rar 附件-996057099788890855.rar
								相关下载
							
						- 带约束拉杆方钢管柱接头大样
- 带约束拉杆方钢管柱接头大样节点构造详细设计CAD图纸(二)
- 带约束拉杆方钢管柱接头大样节点构造详细设计CAD图纸
- 带约束拉杆方钢管柱接头大样节点构造CAD详图纸(二)
- 带约束拉杆方钢管柱接头大样节点构造CAD详图纸(一)
- 带约束拉杆方钢管柱接头大样节点构造CAD详图纸
- 带约束拉杆方钢管柱接头节点构造CAD详图纸
- 院带约束拉杆方钢管柱梁柱节点大样
- 带约束拉杆方钢管柱梁柱节点大样
- 带约束拉杆方钢管柱梁柱构造详图纸cad
- 带约束拉杆方钢管混凝土柱大样及柱表节点构造CAD详施工图纸
- 带约束拉杆方钢管混凝土柱尺寸表节点构造详图纸
- 院带约束拉杆方钢管混凝土柱节点牛腿大样CAD图纸
- 带约束拉杆异形钢管混凝土柱定位器大样节点构造CAD详施工图纸
- 带约束拉杆异形钢管混凝土柱大样及柱表节点构造详图纸
- 带约束拉杆异形钢管混凝土柱节点详图纸cad
- 院带约束拉杆异形钢管混凝土柱定位器大样
- 带约束拉杆异形钢管混凝土柱定位器大样
- 带约束拉杆异形钢管混凝土柱大样及柱表cad
- 钢管柱节点构造CAD详大样图大全
全部评论
						
							评论网友评论仅友表达个人看法,并不表明本站同意其观点,不得发布违反法律法规的内容!
						
						
