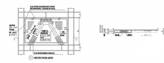
内藏钢支撑剪力墙的混凝土墙板节点构造详图纸cad
- 发布时间:2024-01-02
- 评论次数:0
- 浏览次数:0
- 文件大小:0.05 MB
- 收藏次数:0
-
文件名称:
附件-996057097989898500.rar
相关下载
- 内藏钢支撑剪力墙的混凝土墙板构造节点CAD详图纸
- 内藏钢支撑剪力墙的混凝土墙板构造详图纸cad
- 内藏钢支撑剪力墙的混凝土墙板节点构造详图纸共2个节点
- 内藏钢支撑剪力墙的构造
- 内藏钢支撑剪力墙的钢板支撑节点构造详图纸
- 内藏钢支撑剪力墙的钢板支撑构造节点CAD详图纸
- 内藏钢支撑剪力墙的钢板支撑构造节点
- 内藏钢支撑剪力墙的钢板支撑构造详图纸cad
- 钢框架墙板连接节点构造详细设计CAD图纸
- 钢框架墙板连接节点构造CAD详图纸
- 钢支撑节点构造CAD详图纸
- 钢支撑节点构造CAD详图纸
- 深基坑支撑体系节点设计CAD详大样图(钢支撑).dwg
- 民用钢框架交叉形支撑的连接节点构造CAD详图纸
- 民用钢框架人字形支撑的连接节点构造CAD详图纸
- 墙板系统节点构造CAD详图纸
- 墙板系统节点构造CAD详图纸
- 钢-混凝土组合梁大样及梁表节点构造CAD详施工图纸
- 钢-混凝土组合转换梁大样节点构造CAD详施工图纸
- 管道钢支架节点构造CAD详施工图纸
全部评论
评论网友评论仅友表达个人看法,并不表明本站同意其观点,不得发布违反法律法规的内容!
