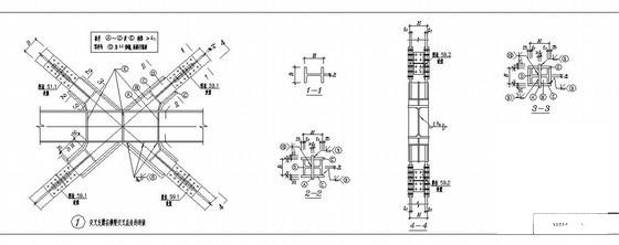
交叉支撑在横梁交叉点处的连接节点构造详图纸cad
- 发布时间:2024-01-02
- 评论次数:0
- 浏览次数:0
- 文件大小:0.06 MB
- 收藏次数:0
-
文件名称:
附件-996057097976050078.rar
相关下载
- 交叉支撑在横梁交叉点处的连接
- 交叉支撑在横梁交叉点处的连接节点构造CAD详图纸
- 交叉支撑在横梁交叉点处的连接节点构造详图纸cad
- 民用钢框架交叉形支撑的连接节点构造CAD详图纸
- H型钢在横梁伸臂上的连接节点构造详细设计CAD图纸
- H型钢在横梁伸臂上的连接节点构造CAD详图纸
- 框架横梁与工字形截面柱的刚性连接节点构造CAD详图纸
- 框架横梁与工字形截面柱的刚性连接节点构造CAD详图纸
- 角柱与楼盖处连接大样节点构造详图纸
- 角柱与楼盖处连接大样节点详图构造图
- 框架横梁与工字形截面柱的刚性连接节点构造详细设计CAD图纸
- 框架横梁与工字形截面柱的刚性连接节点构造详细设计CAD图纸
- 民用钢框架梁柱连接处的加劲设置及节点域补强节点构造CAD详图纸
- 板筋在高差处的节点构造详图纸
- 石材幕墙横梁与立柱连接大样节点构造详细设计CAD图纸(一)
- 石材幕墙横梁与立柱连接大样节点构造CAD详图纸(二)
- 屋脊处梁与中柱的刚性连接构造CAD详图纸
- 交叉支撑节点构造CAD详图纸
- 钢骨混凝土柱的连接节点构造详图纸
- 纵横墙砌体的连接大样节点构造详图纸
全部评论
评论网友评论仅友表达个人看法,并不表明本站同意其观点,不得发布违反法律法规的内容!
