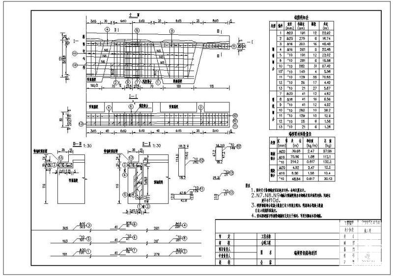
某端横梁钢筋节点构造设计详图纸
- 发布时间:2022-02-20
- 评论次数:0
- 浏览次数:0
- 文件大小:0.05 MB
- 收藏次数:0
-
文件名称:
附件-996056778785698980.rar
相关下载
- 30m预应力小箱梁端横梁钢筋节点构造详图纸
- 现浇箱梁大桥端横梁钢筋构造节点CAD大样图纸
- 预应力混凝土连续箱梁端横梁普通钢筋布置节点CAD详图纸设计
- 现浇中横梁钢筋节点构造设计详图纸
- 7818078m自锚式悬索桥端横梁钢筋节点CAD详图纸设计
- 杭新景高速公路拱肋式大桥横梁梁端钢筋布置节点CAD详图纸设计
- 某楼梯节点构造设计详图纸
- 匝道工程横梁普通钢筋构造节点CAD详图纸设计
- 某雨蓬屋脊节点构造详图纸
- 梁端封锚钢筋节点构造设计详图纸
- 先简支后连续T梁梁端钢筋构造节点CAD详图纸设计
- 某上部横断面节点构造设计详图纸
- 30m预应力小箱梁现浇中横梁钢筋节点构造详图纸
- 30m预应力小箱梁跨中横梁钢筋节点构造详图纸
- 25米T梁中边梁梁端部钢筋节点构造详图纸
- 桥梁梁端锚下加强钢筋构造节点CAD详图纸.dwg
- 380m中承式钢管混凝土系杆拱桥边拱端横梁钢筋节点CAD详图纸设计
- 7818078m自锚式悬索桥端横梁预应力节点CAD详图纸设计
- 某墙水平筋做法节点构造详图纸
- 先简支后连续箱梁现浇中横梁钢筋构造节点CAD详图纸设计
全部评论
评论网友评论仅友表达个人看法,并不表明本站同意其观点,不得发布违反法律法规的内容!
