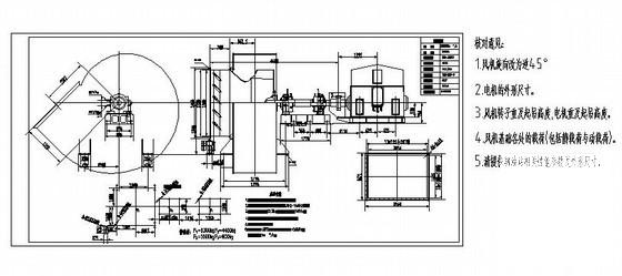
窑头收尘风机节点构造详图纸cad
- 发布时间:2024-01-02
- 评论次数:0
- 浏览次数:0
- 文件大小:0.09 MB
- 收藏次数:0
- 
								文件名称: 附件-996057098779675776.rar 附件-996057098779675776.rar
								相关下载
							
						- 窑尾高温风机节点构造详图纸cad
- 烧成窑头结构设计方案图纸
- 独立基础烧成窑头结构设计施工图纸,共6张
- 预制堵头板钢筋节点构造详图纸
- 锚杆之锚头节点构造CAD详图纸
- 机场工程拉索索头节点构造详图纸cad
- 窑尾避雷接地节点构造详图纸cad
- 电收尘喷水图纸.dwg
- 结构节点构造详施工图纸
- 窑矿风机房变配电室电气设计图纸.dwg
- 砌体结构构造大样节点构造详施工图纸
- 风机口平面布置节点构造设计详图纸
- 加工间壁板封头处理节点构造详图纸
- 桥梁预制堵头板钢筋构造通用CAD图纸
- 煤仓钢结构节点构造详施工图纸
- 单斜V节点构造详设计图纸
- 管道钢支架节点构造CAD详施工图纸
- 50个天窗节点构造CAD详大样图——建筑CAD详大样图
- 桩基础节点构造CAD详大样图
- 坡屋面檐口节点构造CAD详大样图
全部评论
						
							评论网友评论仅友表达个人看法,并不表明本站同意其观点,不得发布违反法律法规的内容!
						
						
