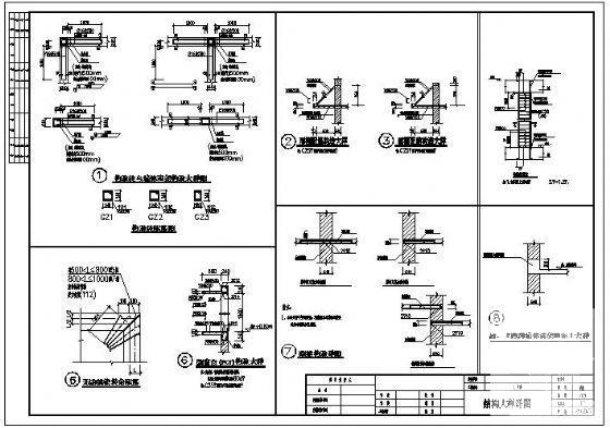
底框结构节点构造大样详图纸cad
- 发布时间:2024-01-02
- 评论次数:0
- 浏览次数:0
- 文件大小:0.09 MB
- 收藏次数:0
- 
								文件名称: 附件-996057059899867759.rar 附件-996057059899867759.rar
								相关下载
							
						- 底框结构构造大样CAD图纸
- 砌体结构构造大样节点构造详施工图纸
- 框剪结构综合楼汽车坡道节点构造详大样图
- 底框楼楼梯节点构造详图纸cad
- 底框楼梯节点构造详图纸cad
- 底框楼梯节点构造详图纸cad
- 底框抗震墙楼梯节点构造详图纸cad
- 50个天窗节点构造CAD详大样图——建筑CAD详大样图
- 结构节点构造详施工图纸
- 底框结构剪力墙构造详图纸
- 钢结构CAD详大样图之钢管斜屋面节点构造CAD详大样图
- 桩基础节点构造CAD详大样图
- 坡屋面檐口节点构造CAD详大样图
- 重力挡土墙节点构造CAD详大样图
- 钢管柱节点构造CAD详大样图大全
- 煤仓钢结构节点构造详施工图纸
- 砌体结构刚性基础大样节点构造详施工图纸
- 加强层钢结构桁架大样节点构造CAD详施工图纸
- 方钢管混凝土柱钢结构大样节点构造CAD详施工图纸.dwg
- 坡屋面平法构造及补充大样节点构造详施工图纸cad
全部评论
						
							评论网友评论仅友表达个人看法,并不表明本站同意其观点,不得发布违反法律法规的内容!
						
						
