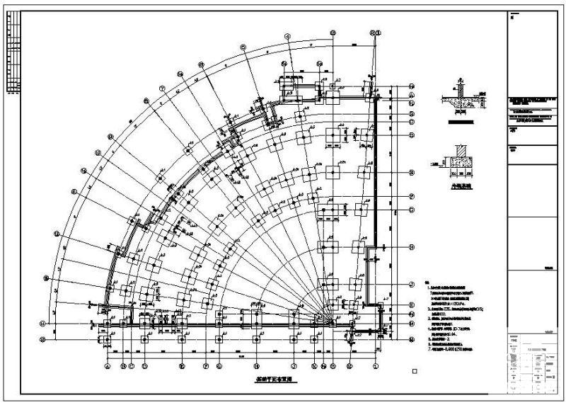
扇形办公楼基础节点构造详图纸cad平面布置图
- 发布时间:2024-01-02
- 评论次数:0
- 浏览次数:0
- 文件大小:0.12 MB
- 收藏次数:0
- 
								文件名称: 附件-995797870587559805.rar 附件-995797870587559805.rar
								相关下载
							
						- 扇形办公楼基础节点构造详细设计CAD图纸(平面布置图)
- 桩基础节点构造CAD详大样图
- 办公楼扇形雨篷节点构造详细设计CAD图纸
- 扇形雨篷结构详大样图
- 扇形钢楼梯节点构造详图纸cad
- 基础梁防水构造详cad图纸
- 柱下混凝土独立基础大样及基础表节点构造详施工图
- 大厦地下桩基础节点构造详图纸平面布置图
- 大厦地下桩基础节点构造CAD详图(7页图纸)(平面布置图)
- 氨罐区设备基础节点构造详细设计CAD图纸(平面布置图)
- 别墅桩基础节点构造详细设计CAD图纸(平面布置图)
- 别墅桩基础节点构造详细设计CAD图纸(平面布置图)
- 空调机组底座基础节点构造详细设计CAD图纸(平面布置图)
- 主厂房基础节点构造详图纸cad平面布置图
- 别墅桩基础节点构造详图纸cad平面布置图
- 锅炉基础节点构造详图纸cad平面布置图
- 设备基础节点构造详图纸cad布置图
- 结构节点构造详施工图纸
- 砌体结构构造大样节点构造详施工图纸
- 砌体结构刚性基础大样节点构造详施工图纸
全部评论
						
							评论网友评论仅友表达个人看法,并不表明本站同意其观点,不得发布违反法律法规的内容!
						
						
 
	              	