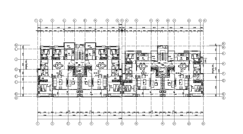
1梯4户住宅户型图纸设计cad
- 发布时间:2024-01-02
- 评论次数:0
- 浏览次数:0
- 文件大小:1.35 MB
- 收藏次数:0
- 
								文件名称: 附件-996585565877956858.rar 附件-996585565877956858.rar
								相关下载
							
						- 12个住宅户型户型设计图纸.
- 住宅平面户型设计CAD图纸(dwg)
- 住宅户型平面设计CAD图纸
- 住宅户型设计CAD图纸集锦.dwg
- 北方住宅户型设计CAD图纸
- 住宅户型设计平面(标准层)()
- 浅谈小户型住宅设计
- 住宅项目户型设计标准流程
- 经典平面户型设计CAD图纸(高层住宅户型).dwg
- 新古典风格保利户型1梯4户住宅户型图纸设计.dwg
- 6层三单元两种户型节能住宅户型图纸设计.dwg
- 7层二单元对称户型城市小区住宅户型设计图纸.dwg
- 小区双拼户型住宅结构设计图纸
- 1梯3户住宅户型图纸设计
- 清新风格住宅户型图纸设计汇总
- 双电梯18层住宅户型图纸设计
- 住宅户型设计CAD平面图纸(dwg)
- 住宅户型设计CAD平面图纸(dwg)
- 九种住宅户型设计CAD平面图纸(dwg)
- 多层住宅楼户型设计CAD图纸.dwg
全部评论
						
							评论网友评论仅友表达个人看法,并不表明本站同意其观点,不得发布违反法律法规的内容!
						
						
 
	              	 
	              	 
	              	 
	              	