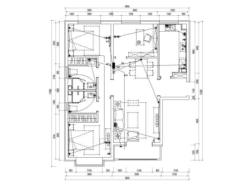
住宅户型电气大样图纸
- 发布时间:2021-12-08
- 评论次数:0
- 浏览次数:0
- 文件大小:0.26 MB
- 收藏次数:0
- 
								文件名称: 附件-996978977577898056.dwg 附件-996978977577898056.dwg
								住宅电气图纸下载
							
						- 26层住宅楼电气施工图纸(户型大样)
- 31层城市综合体之住宅楼项目电气图纸(户型大样)
- 住宅电气大样
- 12个住宅户型户型设计图纸.
- 28层商住楼电气施工图纸(户型大样)
- 27层住宅楼电气施工图纸(三种户型)
- 襄阳三种户型6层住宅楼电气CAD施工图纸
- 科地产住宅户型样板间电气CAD施工图纸
- 知名地产科住宅户型样板间电气CAD施工图纸
- 住宅平面户型设计CAD图纸(dwg)
- 住宅户型平面设计CAD图纸
- 住宅户型设计CAD图纸集锦.dwg
- 多层住宅户型图(CAD图纸)
- 北方住宅户型设计CAD图纸
- 塔式高层住宅户型CAD图纸
- 住宅区塔式住宅端头户型平面CAD图纸
- 6层L型住宅三单元混合户型大样图设计.dwg
- 2栋14层多层住宅户型大样图设计年cad平面图
- 3栋14层多层住宅户型大样图设计年cad平面图
- 33层1梯2户住宅户型大样图设计cad平面图
全部评论
						
							评论网友评论仅友表达个人看法,并不表明本站同意其观点,不得发布违反法律法规的内容!
						
						
 
	              	 
	              	 
	              	 
	              	