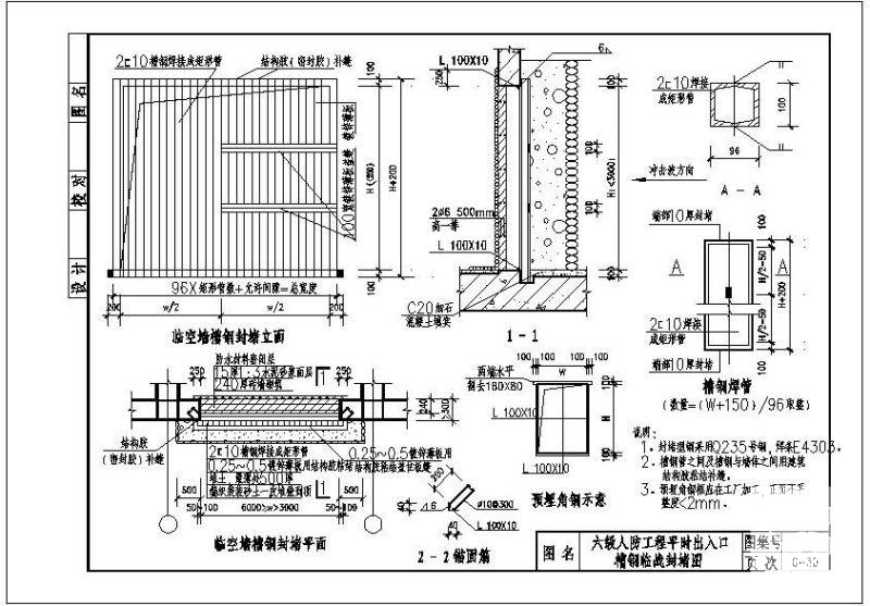
六级人防工程平时出入口槽钢临战封堵节点构造详图纸cad
- 发布时间:2024-01-02
- 评论次数:0
- 浏览次数:0
- 文件大小:0.04 MB
- 收藏次数:0
-
文件名称:
附件-996055057577975766.rar
相关下载
- 5级人防工程平时出入口槽钢临战封堵节点构造详图纸cad
- 6级人防工程平时出入口及孔口临战封堵节点构造详图纸cad
- 6级人防工程平时出入口及孔口临战封堵节点构造详图纸cad
- 人防临战封堵节点构造详细设计CAD图纸
- 6级人防工程相邻防护单元隔墙孔口临战封堵节点构造详图纸cad
- 六级人防地下室临战加固节点构造详图纸及说明
- 人防封堵大样节点构造设计详图纸
- 人防内部车道封堵节点构造详图纸
- 人防战时封堵节点构造详图纸
- 人防封堵大样节点构造详图纸cad
- 人防封堵构造详图纸cad
- 人防出入口节点构造详图纸cad
- 人防封堵节点详图纸cad
- 附壁式防倒塌棚架(六级人防)配筋节点构造详图纸
- 独立式防倒塌棚架(六级人防)配筋节点构造详图纸
- 槽钢类节点构造CAD详图纸
- 内部车道封堵节点构造详图纸
- 人防出入口楼梯及坡道结构详大样图2017
- 人防出入口顶板梁配筋节点构造详图纸
- 人防出入口顶板板配筋节点构造详图纸
全部评论
评论网友评论仅友表达个人看法,并不表明本站同意其观点,不得发布违反法律法规的内容!
