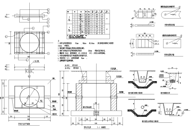
市政道路第五册照明工程cad平面图及大样图,剖面图
- 发布时间:2024-01-02
- 评论次数:0
- 浏览次数:0
- 文件大小:1.02 MB
- 收藏次数:0
-
文件名称:
附件-996879066997755566.dwg
相关下载
- 城市主干道照明工程施工大样图设计平面图及剖面图
- 市政道路照明工程施工CAD大样图设计16张
- 市政道路照明工程设计cad图纸
- 市政道路工程照明施工CAD图纸(大样)
- 道路照明工程施工图纸配电系统图及剖面图
- 市政道路照明工程CAD施工图纸设计13张(桥梁照明).dwg
- 市政道路雨水泵站设计施工图纸平面图及泵房剖面图
- 道路照明工程大样图及照明标准横断面图
- 港城园区边坡整治工程绿化景观施工大样图平面图及剖面图
- 游泳池泵房大样图纸及设备大样图纸平面图及剖面图
- 市政道路交叉口缘石坡道布置示意大样图平面图及剖面图,立面图
- 双向四车道市政道路照明设计大样图平面图
- 市政道路照明设计施工大样图13张平面图
- 市政道路排水工程施工方案大样图平面图,剖面图
- 市政道路扩改工程照明工程施工方案(人行道)
- 跌水景观施工大样图纸平面图及剖面图
- 石桥大样图纸平面图及剖面图
- 跌级水池大样图纸平面图及剖面图
- 休闲座大样图纸平面图及侧立面图,剖面图
- 大门廊柱施工大样图纸门柱平面图及剖面图
全部评论
评论网友评论仅友表达个人看法,并不表明本站同意其观点,不得发布违反法律法规的内容!
