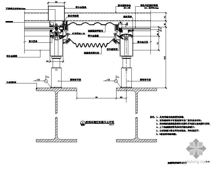
幕墙变形缝节点构造CAD详图纸
- 发布时间:2024-01-02
- 评论次数:0
- 浏览次数:0
- 文件大小:0.15 MB
- 收藏次数:0
-
文件名称:
附件-995797876768890957.rar
相关下载
- 幕墙结构变形缝节点构造设计详图纸
- 幕墙变形缝节点构造详细设计CAD图纸
- 变形缝CAD节点详大样图
- 幕墙结构变形缝节点构造详细设计CAD图纸
- 点式玻璃幕墙节点构造详细设计CAD图纸(变形缝)
- 7个外墙,变形缝,散水,墙身防水节点CAD详大样图
- 墙面变形缝节点构造详细设计CAD图纸
- 墙面变形缝节点构造详细设计CAD图纸
- 楼面变形缝节点构造CAD详图纸
- 变形缝大样节点构造CAD详图纸[2]
- 变形缝节点构造详图纸cad
- 变形缝节点构造详图纸cad
- 进出变形缝(阴阳角)大样节点构造详图
- 结构节点构造详施工图纸
- 玻璃幕墙构造CAD详大样图
- 干挂石材幕墙节点构造CAD详大样图
- 点式幕墙铝板幕墙及玻璃棚钢构节点构造CAD详大样图
- 高层塔式楼幕墙节点CAD详大样图
- 砌体结构构造大样节点构造详施工图纸
- 玻璃幕墙水平变形缝节点CAD大样图纸
全部评论
评论网友评论仅友表达个人看法,并不表明本站同意其观点,不得发布违反法律法规的内容!
