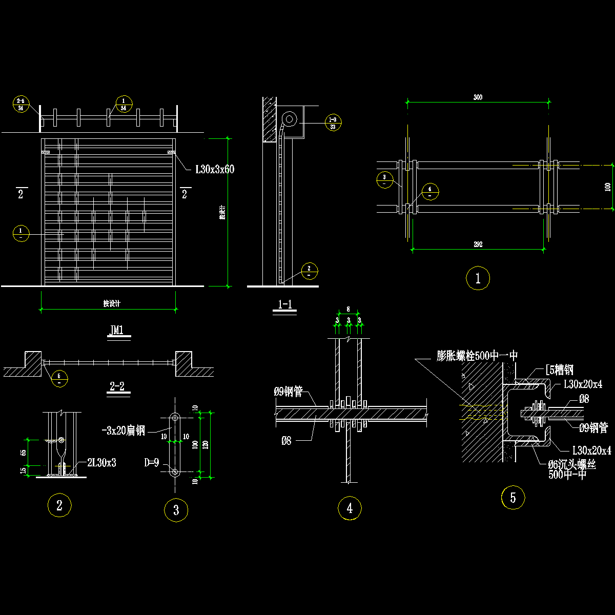
33套铁栅门,空格卷帘门节点CAD详图纸
- 发布时间:2024-01-02
- 评论次数:0
- 浏览次数:0
- 文件大小:2.38 MB
- 收藏次数:0
-
文件名称:
附件-995985757957975075.zip
相关下载
- 铁栅门-卷帘门设计节点合集
- 铁栅门节点CAD详图纸(异型铁栅门,人防铁栅等)
- 33个铁栅门节点CAD详图纸
- 卷帘门节点构造详细设计CAD图纸
- 防火卷帘门电路CAD图纸
- 防火卷帘门电路CAD图纸
- 33个铁栅门节点构造CAD详图纸——建筑CAD详图纸
- 铁栅门旋翻下轨祥CAD图纸
- 防火卷帘门电气控制原理CAD图纸
- 各种防火卷帘门控制原理CAD图纸
- 防火卷帘门电气控制原理CAD图纸
- 结构节点构造详施工图纸
- 型钢节点详大样图2018
- 柱脚节点详大样图
- 50个天窗节点构造CAD详大样图——建筑CAD详大样图
- 钢桁架节点详施工图纸合集
- 砌体结构构造大样节点构造详施工图纸
- 煤仓钢结构节点构造详施工图纸
- 单斜V节点构造详设计图纸
- 管道钢支架节点构造CAD详施工图纸
全部评论
评论网友评论仅友表达个人看法,并不表明本站同意其观点,不得发布违反法律法规的内容!
