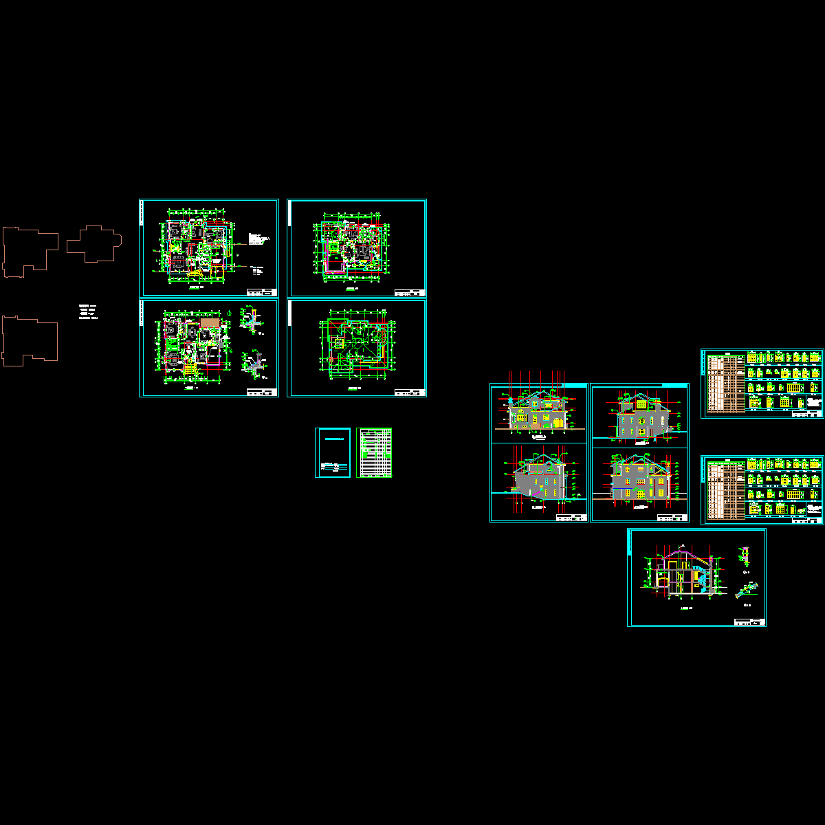
2层国际花园七套别墅建筑施工CAD图纸
- 发布时间:2024-01-02
- 评论次数:0
- 浏览次数:0
- 文件大小:7.06 MB
- 收藏次数:0
- 
								文件名称: 附件-995898857559598870085.rar 附件-995898857559598870085.rar
								相关下载
							
						- 2层国际花园七套别墅建筑施工CAD图纸(值得收藏)
- 3层长江国际花园双拼别墅建筑CAD施工图纸
- 国际花园地下车库建筑扩初图纸
- 国际花园社区建筑设计分析
- 国际花园3层双拼别墅施工CAD图纸(15号楼)
- 国际花园3层双拼别墅施工CAD图纸(23号楼)
- 国际花园3层简欧式双拼别墅施工CAD图纸(18号楼)
- 国际花园3层简欧式双拼别墅施工CAD图纸(16号楼)
- 国际花园绿化规划平面CAD图纸
- 上城国际花园别墅区弱电平面CAD图纸
- 18层国际花园住宅结构CAD施工图纸
- 3层花园式别墅建筑施工CAD图纸
- 东方花园B型别墅建筑CAD施工图纸
- 花园别墅B型建筑施工CAD图纸
- 皇冠花园2层别墅建筑施工CAD图纸
- 长江国际花园6层住宅楼建筑施工CAD图纸
- 长江国际花园住宅楼(1、2、3号)建筑施工CAD图纸
- 长江国际花园青春公寓60号楼建筑施工CAD图纸
- 长江国际花园四号框剪结构住宅楼建筑施工CAD图纸
- 长江国际花园44号住宅楼建筑施工CAD图纸
全部评论
						
							评论网友评论仅友表达个人看法,并不表明本站同意其观点,不得发布违反法律法规的内容!
						
						
 
	              	 
	              	 
	              	 
	              	 
	              	