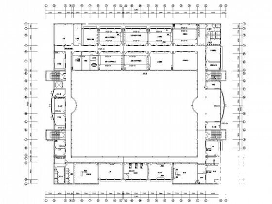
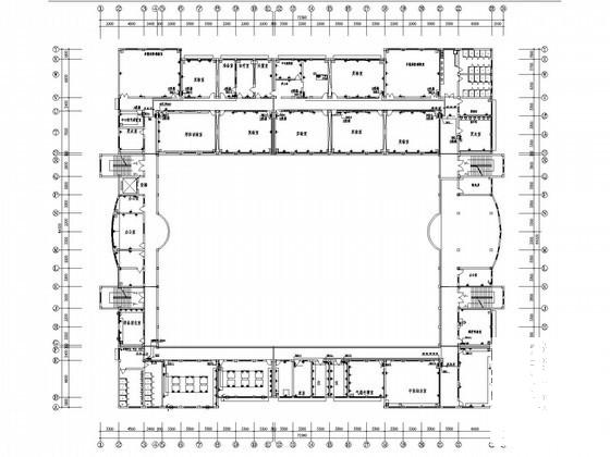
大学6层实验楼强弱电施工图纸
- 发布时间:2021-11-23
- 评论次数:0
- 浏览次数:0
- 文件大小:2 MB
- 收藏次数:0
- 
								文件名称: 附件-995856597876565977078.rar 附件-995856597876565977078.rar
								强弱电施工图纸下载
							
						- 大学医学实验楼强弱电气CAD施工图纸
- 学校实验楼强弱电CAD图纸
- 大学综合实验楼消防报警系统图纸
- 大学护理学院实验楼
- 大学公寓强弱电CAD施工图纸
- 6层大学实验楼强弱电CAD施工图纸(负荷计算)(钢筋混凝土结构)(TN-C-S)
- 9层大学东校区实验楼建筑施工CAD图纸(卫生间详图)
- 5层知名大学实验楼电气设计CAD施工图纸
- 5层大学基础实验楼给排水CAD施工图纸
- 大学综合实验楼给排水CAD施工图纸(自动喷水灭火系统)
- 5层大学科学实验楼给排水CAD施工方案图纸
- 5层大学实验楼电气设计CAD施工图纸(视频监控系统)
- 5层知名大学实验楼电气CAD施工图纸(TN-C-S)
- 大学实验楼景观绿化CAD施工图纸.dwg
- 北方民族大学工科实验楼项目电气CAD施工图纸.dwg
- 39700平米大学6层实验楼通风排烟图纸.dwg
- 信息工程大学实验楼设计说明(人防地下室)
- 师范大学4号综合实验楼结构设计计算书.doc
- 中国石油大学校区工科实验楼结构设计
- 水产大学公共实验楼电气设计书.doc
全部评论
						
							评论网友评论仅友表达个人看法,并不表明本站同意其观点,不得发布违反法律法规的内容!
						
						
 
	              	 
	              	 
	              	