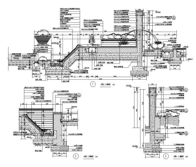
叠水水景节点详图纸设计

附件详情:叠水水景节点详图设计

包含:平面图、立面图、剖面图。

叠水水景节点详图设计 (1)

叠水水景节点详图设计 (2)

叠水水景节点详图设计 (3)

叠水水景节点详图设计 (4)

叠水水景节点详图设计 (5)

叠水水景节点详图设计 (6)


以下是附件的其中一部分截图,共6张,您也可以 搜索 更多您想要的资源
  • 水景设计图纸 - 1
    水景设计图纸 - 1
  • 水景设计图纸 - 2
    水景设计图纸 - 2
  • 水景设计图纸 - 3
    水景设计图纸 - 3
  • 水景设计图纸 - 4
    水景设计图纸 - 4
  • 水景设计图纸 - 5
    水景设计图纸 - 5
  • 水景设计图纸 - 6
    水景设计图纸 - 6
以上是部分截图,请下载附件后查看完整高清内容
网站首页  | 
本站所有内容均由网友自主分享,仅供学习和参考,如有侵权内容或者违法行为,请及时联系站长删除。