居住区水池叠水节点大样图纸设计

附件详情:居住区水池叠水节点大样图设计

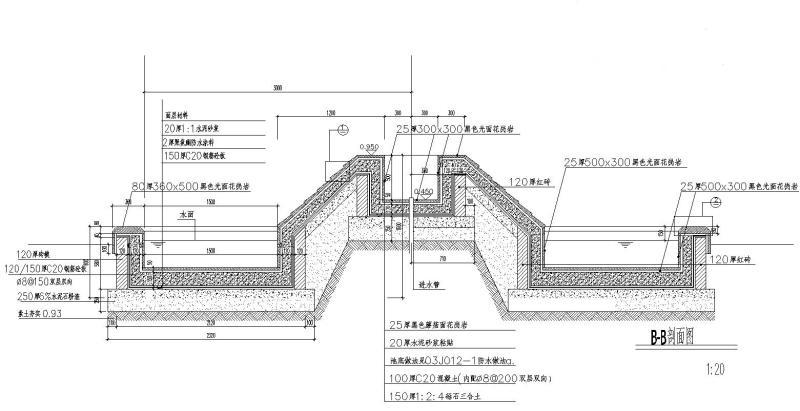
包含:平面图、立面图、剖面图。

居住区水池叠水节点大样图设计 (1)

居住区水池叠水节点大样图设计 (2)

居住区水池叠水节点大样图设计 (3)

居住区水池叠水节点大样图设计 (4)

居住区水池叠水节点大样图设计 (5)


以下是附件的其中一部分截图,共5张,您也可以 搜索 更多您想要的资源
  • 节点大样图纸 - 1
    节点大样图纸 - 1
  • 节点大样图纸 - 2
    节点大样图纸 - 2
  • 节点大样图纸 - 3
    节点大样图纸 - 3
  • 节点大样图纸 - 4
    节点大样图纸 - 4
  • 节点大样图纸 - 5
    节点大样图纸 - 5
以上是部分截图,请下载附件后查看完整高清内容
网站首页  | 
本站所有内容均由网友自主分享,仅供学习和参考,如有侵权内容或者违法行为,请及时联系站长删除。