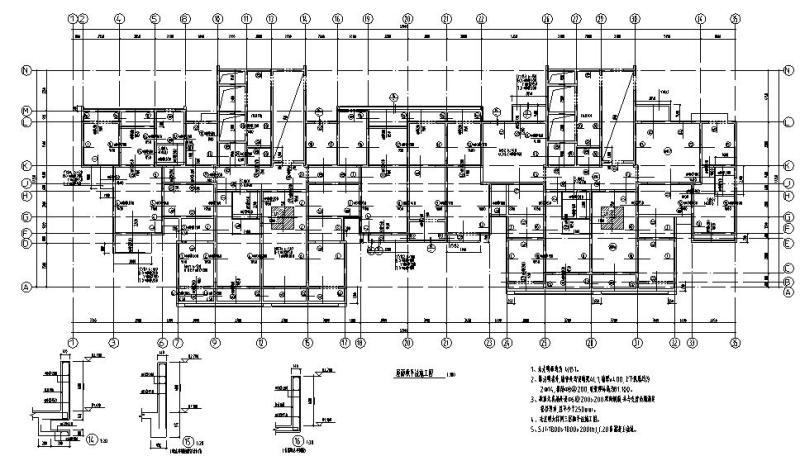
29层高层住宅剪力墙结构施工方案图纸
- 发布时间:2021-12-09
- 评论次数:0
- 浏览次数:0
- 文件大小:7.62 MB
- 收藏次数:0
-
文件名称:
附件-996075890798090889.dwg
剪力墙结构施工方案下载
- 建筑防雷接地施工方案(剪力墙结构)
- 高层剪力墙结构毕业设计方案
- 高层剪力墙结构住宅卸料平台方案_CAD
- 剪力墙住宅结构住宅结构设计方案CAD施工图纸
- 地上25层剪力墙结构住宅楼结构CAD施工方案图纸
- 31层剪力墙结构高层住宅结构CAD施工方案图纸
- 18层剪力墙结构住宅楼结构CAD施工方案图纸
- 16层剪力墙结构住宅楼结构CAD施工方案图纸
- 27层剪力墙结构商住楼结构CAD施工方案图纸
- 18层剪力墙结构住宅楼结构CAD施工方案图纸
- 17层剪力墙结构住宅楼结构CAD施工方案图纸
- 地上17层剪力墙结构住宅楼结构CAD施工方案图纸
- 10层剪力墙结构住宅楼结构CAD施工方案图纸
- 11层剪力墙结构住宅楼结构CAD施工方案图纸
- 20层剪力墙结构住宅楼结构CAD施工方案图纸
- 25层剪力墙结构住宅楼结构CAD施工方案图纸
- 30层剪力墙结构住宅楼结构CAD施工方案图纸
- 地上28层剪力墙结构住宅楼结构CAD施工方案图纸
- 13层框架剪力墙结构宾馆结构CAD施工方案图纸
- 13层框架剪力墙结构宾馆结构CAD施工方案图纸(、37张)
全部评论
评论网友评论仅友表达个人看法,并不表明本站同意其观点,不得发布违反法律法规的内容!
