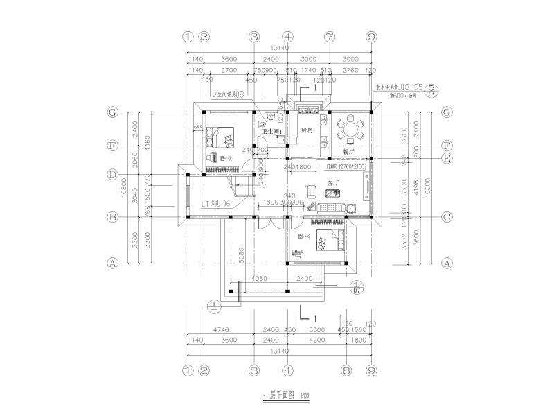
2层现代农村自建房设计建筑施工图纸
- 发布时间:2021-12-09
- 评论次数:0
- 浏览次数:0
- 文件大小:2.47 MB
- 收藏次数:0
-
文件名称:
附件-996079588008997986.dwg
农村自建房建筑图纸下载
- 新农村自建房建筑结构CAD图纸
- 东部沿海3层农村自建房建筑结构CAD施工图纸
- 两层农村自建房建筑施工方案图纸(CAD)
- 农村自建房3层独栋别墅建筑设计CAD施工图纸
- 两层砖混结构农村自建房结构施工图纸
- 3层框架结构农村自建房结构施工图纸
- 两层农村自建房混合结构CAD施工方案图纸
- 2层农村自建房砖混结构设计CAD施工图纸
- 2层农村自建房砖混结构CAD施工图纸()
- 3层砖混结构农村自建房屋住宅全套CAD施工图纸
- 两层砖混结构农村自建房结构CAD施工图纸(建筑图纸)
- 2层砖混农村自建房建筑结构设计CAD施工图纸
- 新中式农村自建房3层独栋别墅建筑设计施工图(全套CAD图纸)
- 农村自建房2层独栋别墅建筑设计CAD施工大样图
- 2层砖混农村自建房建筑结构设计施工图纸(建筑结构设计说明)
- 两层农村自建房混合结构CAD施工图纸(筏形基础)
- 4层农民自建房建筑施工CAD图纸
- 104平米中国占地农村自建房2层独栋别墅CAD施工大样图
- 农村住宅建筑CAD施工图纸
- 新农村住宅建筑施工CAD图纸
全部评论
评论网友评论仅友表达个人看法,并不表明本站同意其观点,不得发布违反法律法规的内容!
