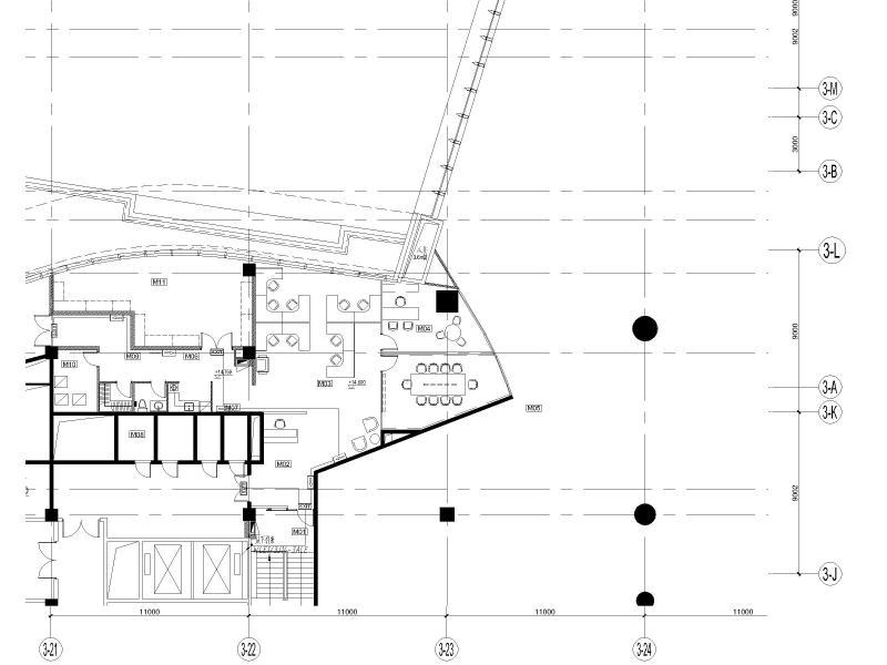
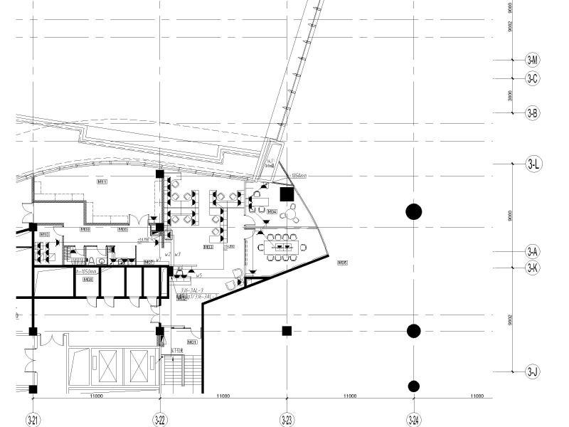
室内溜冰场电气装饰施工图纸
- 发布时间:2021-12-09
- 评论次数:0
- 浏览次数:0
- 文件大小:8.36 MB
- 收藏次数:0
-
文件名称:
附件-996068096578889976.zip
室内电气施工图下载
- 6层交易中心室内装饰电气施工图纸
- 成都6层交易中心室内装饰电气CAD施工图纸
- 6层国内商业中心室内装饰工程电气全套图纸
- 单层会所室内装饰电气工程图纸(甲级院设计)
- 12层办公楼室内装饰电气CAD图纸
- 最新知名会所室内装饰电气工程CAD图纸(甲级院设计)
- 实验室大楼室内装饰工程电气图纸.dwg
- 招待所室内装饰工程电气设计.dwg
- 中学4层实验图书综合楼装修电气CAD施工图纸(室内装饰工程)
- 宾馆装饰电气CAD图纸
- 5层办公大楼室内装饰强电设计施工图纸
- 殡仪馆室内装饰给排水施工图纸cad
- 4层办公楼室内装饰水电CAD施工图纸42张
- 5层办公大楼室内装饰强电设计CAD施工图纸
- 茶馆装饰电气CAD施工图纸
- 装饰工程电气CAD施工图纸
- 茶馆装饰电气施工CAD图纸
- 46层商务中心室内装饰水暖施工大样图
- 溜冰场屋盖28m跨度管桁架结构CAD施工图纸
- 9层试验基地大楼室内给排水装饰CAD图纸
全部评论
评论网友评论仅友表达个人看法,并不表明本站同意其观点,不得发布违反法律法规的内容!
