admin
|
退出
|
登录
|
注册
|
0
积分
|
赚取积分
|
VIP领取积分
|
帮助中心
|
首页
【知石网】是一个专业资料分享学习平台,本站提供大量施工技术文档和设计下载。
首页
施工图纸
施工方案
施工组织
施工交底
合同表格
建筑结构
节点详图
毕业设计
平面图纸
景观设计
电气知识
环保知识
您当前位置:
首页
»
节点详图
»
节点详图
»
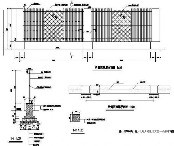
竹篱笆围墙节点详图纸
竹篱笆围墙节点详图纸
资料简介
赚取积分
搜索更多资源
附件详情
竹篱笆围墙节点详图包括平立剖及详细
节点图
。
4
以下是附件的其中一部分截图,共2张,您也可以
搜索
更多您想要的资源
围墙节点详图 - 1
围墙节点详图 - 2
以上是部分截图,请下载附件后查看完整高清内容
发布时间:2021-12-08
评论次数:0
浏览次数:0
文件大小:0.04 MB
收藏次数:0
文件名称:
附件-996978976589080957.rar
下载信息
加入收藏
赚取积分
立即下载
对不起,系统繁忙,请稍后再试,或联系管理员
对不起,您的积分余额不足,请
充值积分
恭喜购买成功!请
下载文件
围墙节点详图下载
特色水景围墙及溢水池节点构造CAD详大样图
围墙建筑结构节点CAD详施工大样图
围墙节点大样CAD图纸
围墙节点CAD详图纸
围墙节点施工CAD图纸
围墙大门施工节点图纸.
围墙节点CAD图纸大样图纸
围墙施工CAD图纸节点详图纸
围墙节点构造CAD详图纸
围墙节点CAD施工图纸设计
围墙栏杆节点CAD详图纸
围墙大门节点大样CAD图纸
小区围墙节点CAD施工图纸
厂区围墙节点构造CAD详图纸
围墙栏杆节点CAD详图纸
围墙施工节点CAD详图纸
围墙节点构造CAD详图纸
临时砖砌围墙、夹心钢板围墙节点详细设计CAD图纸
临时砖砌围墙、夹心钢板围墙节点CAD详图纸
结构节点构造详施工图纸
全部评论
评论
网友评论仅友表达个人看法,并不表明本站同意其观点,不得发布违反法律法规的内容!
围墙节点详图下载排行
型钢节点详大样图2018
柱脚节点详大样图
围墙大门CAD图纸节点大样图纸
围墙CAD施工图纸节点详图纸
外围墙标准段节点详图纸设计
砌筑围墙剖面节点构造CAD详图纸
铸铁花格围墙节点CAD详图纸
50个天窗节点构造CAD详大样图——建筑CAD详大样图
特色围墙设计CAD详大样图(钢筋混凝土结构砖砌结构铁艺)
小区围墙和临时围墙施工详细设计CAD图纸
围墙节点详图下载推荐
私家小院围墙及围墙断面CAD图纸
钢桁架节点详施工图纸合集
砌体结构构造大样节点构造详施工图纸
煤仓钢结构节点构造详施工图纸
单斜V节点构造详设计图纸
管道钢支架节点构造CAD详施工图纸
钢结构烟囱节点CAD详施工图纸
楼梯结构详施工图纸cad节点详图
钢管围墙详图纸
围墙大样CAD图纸
网站首页
|
信息产业部备案/许可证编号:苏ICP备2021052619号-1
苏公网安备:32041102001778号
本站所有内容均由网友自主分享,仅供学习和参考,如有侵权内容或者违法行为,请及时联系站长删除。