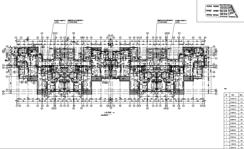
3栋14层多层住宅户型大样图设计年cad平面图
- 发布时间:2024-01-02
- 评论次数:0
- 浏览次数:0
- 文件大小:8.2 MB
- 收藏次数:0
- 
								文件名称: 附件-996585565900790958.dwg 附件-996585565900790958.dwg
								相关下载
							
						- 2栋14层多层住宅户型大样图设计年cad平面图
- 14层剪力墙结构住宅户型大样图设计年cad平面图
- 现代风多层双拼住宅户型报建大样图cad平面图
- 现代风多层四拼住宅户型报建大样图cad平面图
- 5套多层住宅户型平面图纸_cad平面图
- 高层住宅+多层住宅+商业户型图纸平面图
- 多层住宅建筑住宅楼户型设计图纸_平面图_剖面图
- 多层住宅楼户型选集
- 多层住宅户型图(CAD图纸)
- 25个多层住宅经典户型_CAD
- 31个板式多层、高层户型平面图纸.dwg
- 多层与小高层户型平面图纸.dwg
- 多层及高层户型平面图纸16套.dwg
- 多层洋房170户型平面图纸_cad
- 经典多层住宅楼一梯二户型平面图纸(、板式)
- 多层板式住宅楼户型平面图纸(143平方米).dwg
- 多层住宅户型设计图纸和标准层平面图_cad
- 经典多层住宅楼户型设计图纸和cad平面图
- 多层住宅楼户型设计CAD图纸.dwg
- 25个多层住宅经典户型图cad图纸
全部评论
						
							评论网友评论仅友表达个人看法,并不表明本站同意其观点,不得发布违反法律法规的内容!
						
						
 
	              	 
	              	 
	              	 
	              	 
	              	