53套泳池喷泉跌水浴场施工方案图纸
- 发布时间:2021-12-08
- 评论次数:0
- 浏览次数:0
- 文件大小:13.13 MB
- 收藏次数:0
- 
								文件名称: 附件-996975975757807567.zip 附件-996975975757807567.zip
								喷泉施工方案下载
							
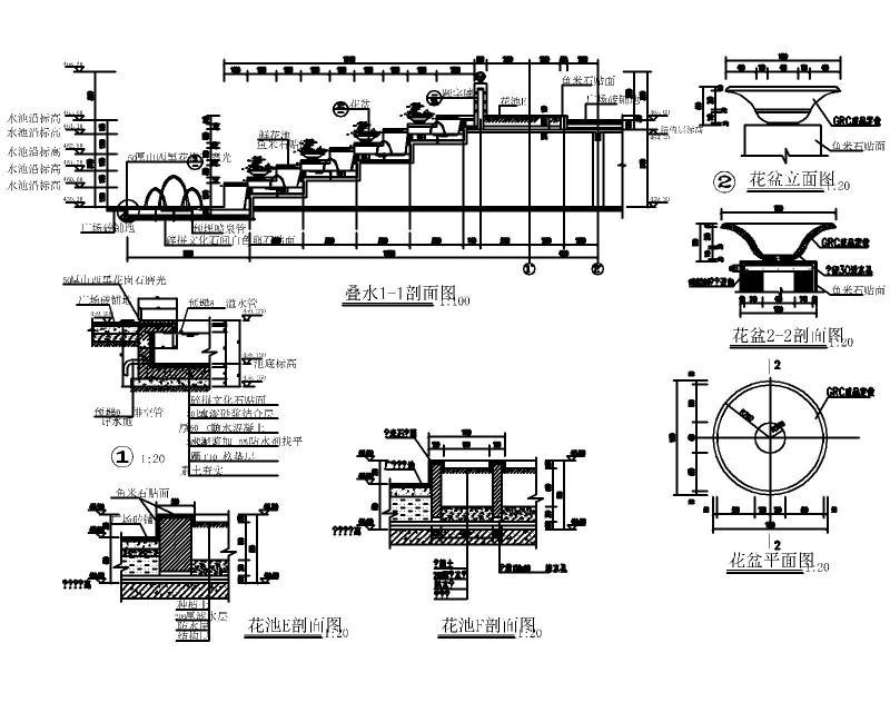
						- 跌水喷泉施工CAD详图纸
- 跌水喷泉全套CAD施工图纸
- 跌水式喷泉施工大样
- 37套泳池浴场CAD施工方案图纸(1-20)
- 37套泳池浴场CAD施工方案图纸(21-37)
- 跌水式喷泉水钵CAD施工图纸
- 喷泉及跌水池水电CAD施工方案图纸(系统图)
- 方形跌水喷泉水景设计CAD详图纸
- 小区水景跌水喷泉水施CAD图纸
- 景观细部CAD施工图纸—泳池浴场CAD施工图纸设计.dwg
- 24种跌水叠泉喷泉水池等水景施工图纸
- 檠海盐卤浴场方案创作札记(这个项目)
- 足浴场空调CAD施工图纸
- 桑拿浴场底层平面图纸
- 特色跌水喷泉施工大样图纸剖面图及叠水口断面图
- 区生态渔业浴场采暖空调施工图纸
- 休闲浴场水电CAD施工图纸.dwg
- 4层浴场空调通风CAD施工图纸
- 小区泳池CAD施工方案图纸
- 跌水与汀步详细CAD施工方案图纸
全部评论
						
							评论网友评论仅友表达个人看法,并不表明本站同意其观点,不得发布违反法律法规的内容!
						
						
 
	              	 
	              	 
	              	 
	              	 
	              	