admin
|
退出
|
登录
|
注册
|
0
积分
|
赚取积分
|
VIP领取积分
|
帮助中心
|
首页
【知石网】是一个专业资料分享学习平台,本站提供大量施工技术文档和设计下载。
首页
施工图纸
施工方案
施工组织
施工交底
合同表格
建筑结构
节点详图
毕业设计
平面图纸
景观设计
电气知识
环保知识
您当前位置:
首页
»
其他文档
»
其他资料
»
小院木栅栏详大样图
小院木栅栏详大样图
资料简介
赚取积分
搜索更多资源
附件详情
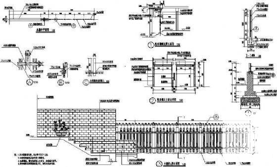
小院木栅栏详图包括平立剖及详细大样图。
以下是附件的其中一部分截图,共4张,您也可以
搜索
更多您想要的资源
第 1 张图
第 2 张图
第 3 张图
第 4 张图
以上是部分截图,请下载附件后查看完整高清内容
发布时间:2021-12-08
评论次数:0
浏览次数:0
文件大小:0.11 MB
收藏次数:0
文件名称:
附件-996975950766868575.rar
下载信息
加入收藏
赚取积分
立即下载
对不起,系统繁忙,请稍后再试,或联系管理员
对不起,您的积分余额不足,请
充值积分
恭喜购买成功!请
下载文件
相关下载
重檐木亭施工CAD详大样图
休闲木亭施工CAD详大样图
木平桥CAD详大样图
四角木亭施工CAD详大样图
农家小院电气设计
木栅栏施工CAD图纸
铁艺栅栏节点详图纸设计
日式景园木栅栏做法大样
私家小院围墙及围墙断面CAD图纸
50个天窗节点构造CAD详大样图——建筑CAD详大样图
木栈桥施工CAD大样图
木亭施工CAD大样图
型钢节点详大样图2018
焊缝通用详大样图2018
柱脚节点详大样图
画舫施工CAD详大样图
泳池施工CAD详大样图
污水提升泵站详大样图
桁架结构CAD详大样图
泳池施工CAD详大样图
全部评论
评论
网友评论仅友表达个人看法,并不表明本站同意其观点,不得发布违反法律法规的内容!
下载排行
网架结构CAD详大样图
铁路工程防护栅栏施工方案(中交)
巡更、视频监控、红外对射栅栏CAD图纸
铁路线路防护栅栏通用CAD图纸
钢结构CAD详大样图之钢管斜屋面节点构造CAD详大样图
木亭子施工大样图纸节点详图
组合木栈道景观CAD大样图纸
折线木平桥施工CAD图纸大样图纸
六角木亭竣工CAD大样图
木亭CAD施工大样图
下载推荐
木栈道景观节点CAD施工大样图
铁艺小拱门花架小院门婚礼拱门施工图纸详图纸cad
上1层农家小院电气设计CAD图纸(火灾自动报警系统)
污水收集池结构详大样图2017
中式风格景观假山跌水详大样图设计
钢结构玻璃采光顶详大样图
钢结构加建楼梯节点详大样图
单阵列固定支架结构详大样图2017
特色入口跌水池做法详大样图设计
特色L形叠水池详大样图设计
网站首页
|
信息产业部备案/许可证编号:苏ICP备2021052619号-1
苏公网安备:32041102001778号
本站所有内容均由网友自主分享,仅供学习和参考,如有侵权内容或者违法行为,请及时联系站长删除。