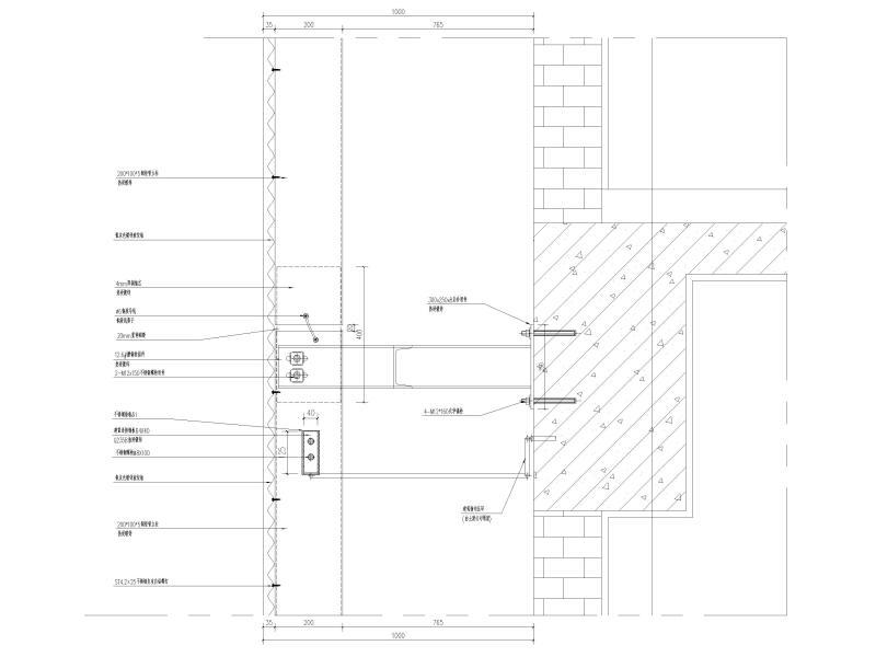
铝合金百叶及幕墙防雷节点图纸2019
- 发布时间:2021-12-07
- 评论次数:0
- 浏览次数:0
- 文件大小:7.19 MB
- 收藏次数:0
- 
								文件名称: 附件-996959867905059088.dwg 附件-996959867905059088.dwg
								铝合金幕墙节点下载
							
						- 铝塑板幕墙节点图纸2019
- 住宅项目铝合金门窗、铝合金百叶制作安装施工方案
- 铝合金窗幕墙节点图纸
- 石材幕墙节点详图纸2019
- 拉索幕墙标准节点图纸2019
- 铝板幕墙节点详图纸2019
- 幕墙三维大样及典型CAD节点图纸2019(玻璃幕墙)
- 明框玻璃幕墙及铝塑板幕墙节点CAD详图纸2019.dwg
- 幕墙防雷节点CAD图纸
- 玻璃幕墙及铝合金型材节点构造详细设计CAD图纸(一)
- 玻璃幕墙及铝合金型材节点详细设计CAD图纸
- 玻璃幕墙及铝合金型材节点CAD详图纸
- 玻璃幕墙及铝合金型材节点构造CAD详图纸(七)
- 玻璃幕墙及铝合金型材节点构造CAD详图纸(五)
- 玻璃幕墙及铝合金型材节点构造CAD详图纸(二)
- 玻璃幕墙及铝合金型材节点构造CAD详图纸(八)
- 玻璃幕墙及铝合金型材节点构造CAD详图纸(六)
- 玻璃幕墙及铝合金型材节点构造CAD详图纸(四)
- 玻璃幕墙及铝合金型材节点构造CAD详图纸(三)
- 美丽世界项目钢结构、栏杆、幕墙、百叶及铝合金窗工程施组设计.doc.doc
全部评论
						
							评论网友评论仅友表达个人看法,并不表明本站同意其观点,不得发布违反法律法规的内容!
						
						
 
	              	 
	              	