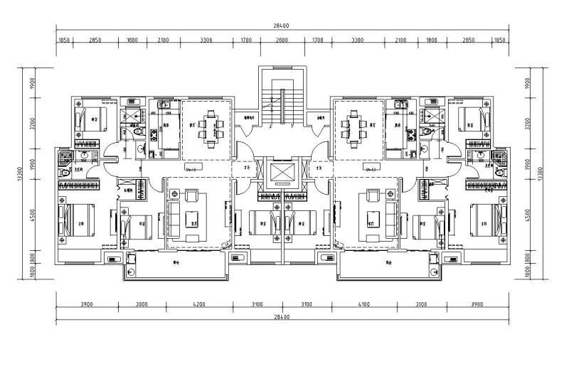
苏南户型标准化设计(六个户型)
- 发布时间:2021-12-07
- 评论次数:0
- 浏览次数:0
- 文件大小:1.48 MB
- 收藏次数:0
-
文件名称:
附件-996966779059609880.dwg
户型标准化下载
- 苏南知名企业标准化研究-户型
- 高层标准化户型设计_cad
- 十六个80-150平米户型设计CAD平面图
- 高层户型图纸-知名机构标准化产品户型设计.dwg
- 75平米标准化户型图纸设计
- 融绿设计户型标准化研究.pdf
- 现代风格保利户型产品标准化140平米中国户型图纸_cad
- 公司户型及核心筒标准化成果
- 高层住宅标准化户型竞赛图纸
- 新亚洲风格保利户型产品标准化160平米中国户型图纸.dwg
- 新亚洲风格保利户型产品标准化140平米中国户型图纸_cad
- 现代风格保利户型产品标准化160平米中国户型图纸和cad平面图
- 新古典风格保利户型产品标准化160平米中国户型CAD图纸
- 利户型产品竞赛高层住宅标准化设计-TH
- 2019年融创标准化户型图纸设计_cad
- 2020年深圳强化设计住宅标准化户型库_cad
- 别墅标准化户型设计图纸_cad联排别墅
- 知名企业高层住宅标准化产品线户型设计
- 华南地区户型模块标准化整理汇总
- 知名地产代表性项目别墅标准化户型
全部评论
评论网友评论仅友表达个人看法,并不表明本站同意其观点,不得发布违反法律法规的内容!
