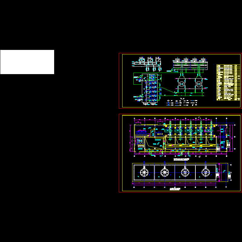
电厂循环水泵房设计cad图纸和平面图及大样和材料明细
- 发布时间:2023-12-28
- 评论次数:0
- 浏览次数:0
- 文件大小:0.15 MB
- 收藏次数:0
- 
								文件名称: 附件-995799875068758787.rar 附件-995799875068758787.rar
								相关下载
							
						- 电厂工程循环水泵房设计cad施工图纸和电厂设计说明
- 电厂循环水泵房设计CAD图纸.dwg
- 电厂循环水泵房安装图纸(房平面图).dwg
- 热电厂供热机组及主厂房施工组织设计(循环水泵房)
- 电厂工程循环水泵房CAD施工图纸
- 粗格栅和进水泵房CAD施工方案图纸(平面图)
- 消防水池和水泵房CAD大样图纸(施工方案图设计)
- 小区水泵房设计cad图纸和集水坑大样图
- 苏州小学门卫及水泵房详图,平面图,剖面图和系统图
- 电厂采暖通风施工方案(循环水泵房)
- 三脚架节点构造详图纸及材料明细表3
- 模板节点构造详图纸及材料明细表1
- 模板节点构造详图纸及材料明细表2
- 模板节点构造详图纸及材料明细表3
- 模板节点构造详图纸及材料明细表4
- 模板节点构造详图纸及材料明细表5
- 三脚架节点构造详图纸及材料明细表1
- 三脚架节点构造详图纸及材料明细表2
- 5T反渗透纯水施工图纸及材料表明细()
- 电厂典型直流系统图纸和布置图纸.
全部评论
						
							评论网友评论仅友表达个人看法,并不表明本站同意其观点,不得发布违反法律法规的内容!
						
						
