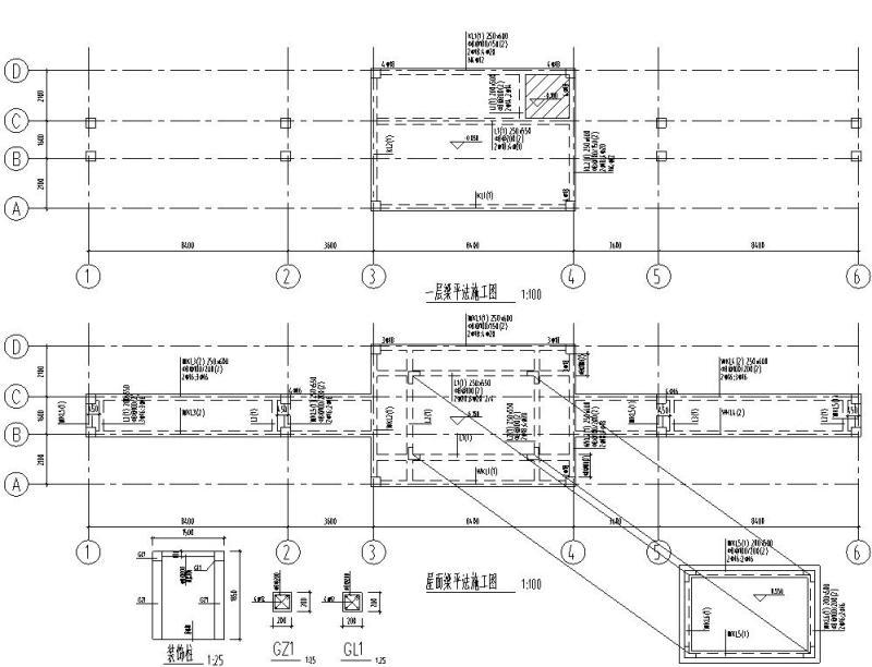
住宅小区多个大门混凝土结构施工方案图纸
- 发布时间:2021-12-06
- 评论次数:0
- 浏览次数:0
- 文件大小:1.45 MB
- 收藏次数:0
-
文件名称:
附件-996979080585089750.dwg
小区大门施工方案下载
- CAD住宅小区大门设计方案(混凝土结构)
- 住宅小区主入口大门结构施工图纸
- 住宅小区主入口大门结构CAD施工方案图纸(建筑图纸)
- 多个户型方案(有9张户型方案)
- 住宅小区大门建筑施工CAD图纸.dwg
- 混凝土大门结构节点构造详图纸
- 南方小镇大门牌楼混凝土结构CAD施工方案图纸
- 幼儿园大门及围墙CAD施工方案图纸(钢筋混凝土结构)
- 住宅小区大门结构设计CAD施工图纸
- 住宅小区大门结构设计CAD施工图纸
- 住宅小区垃圾房混凝土结构施工方案图纸
- 住宅小区钢框架大门结构施工大样图
- 住宅小区钢框架大门结构CAD施工大样图
- 多个钢结构节点详细设计CAD图纸(地脚螺栓)
- 独立基础住宅小区大门结构设计CAD图纸.dwg
- 混凝土大门结构节点构造详细设计CAD图纸
- 塞外皇宫中式风格高档酒店建筑设计方案文本(多个方案).pdf
- 塞外皇宫中式风格高档酒店建筑设计方案文本(多个方案)
- 多个经典结构设计说明
- 多个经典结构设计说明.dwg
全部评论
评论网友评论仅友表达个人看法,并不表明本站同意其观点,不得发布违反法律法规的内容!
