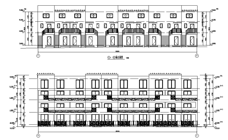
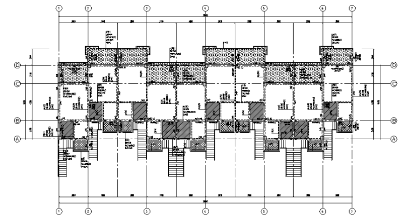
3层六户联排别墅混凝土结构施工方案图纸含建筑图纸
- 发布时间:2021-12-06
- 评论次数:0
- 浏览次数:0
- 文件大小:1.65 MB
- 收藏次数:0
- 
								文件名称: 附件-996979080770797888.rar 附件-996979080770797888.rar
								别墅混凝土施工方案下载
							
						- 3层住宅别墅混凝土结构施工方案图纸
- 3层别墅混凝土结构CAD施工方案图纸()
- 3层别墅混凝土结构CAD施工方案图纸()
- 3层别墅混凝土结构CAD施工方案图纸()
- 混凝土别墅建筑CAD施工图纸
- 别墅外观方案-单层别墅
- 2层山地别墅混凝土结构施工方案图纸含建筑图纸
- 4层度假别墅混凝土框架结构施工方案图纸
- 4层框架小型别墅混凝土施工方案图纸
- 4层小型别墅带地下室混凝土结构施工方案图纸
- 高档4层别墅混凝土结构施工方案图纸含建筑
- 3层联排别墅混凝土结构施工方案图纸含建筑图纸
- 4层小型独栋别墅混凝土框架结构施工方案图纸
- 4层独栋小别墅混凝土结构施工方案图纸
- 4层小型度假别墅混凝土结构施工方案图纸
- 3层别墅带地下室混凝土结构施工方案大样图
- 4层别墅混凝土框架结构施工方案图纸
- 2层别墅混凝土结构施工方案图纸含建筑
- 3层别墅异形柱混凝土框架结构施工方案图纸
- 度假中心3层别墅混凝土结构施工方案图纸
全部评论
						
							评论网友评论仅友表达个人看法,并不表明本站同意其观点,不得发布违反法律法规的内容!
						
						
 
	              	 
	              	 
	              	 
	              	 
	              	