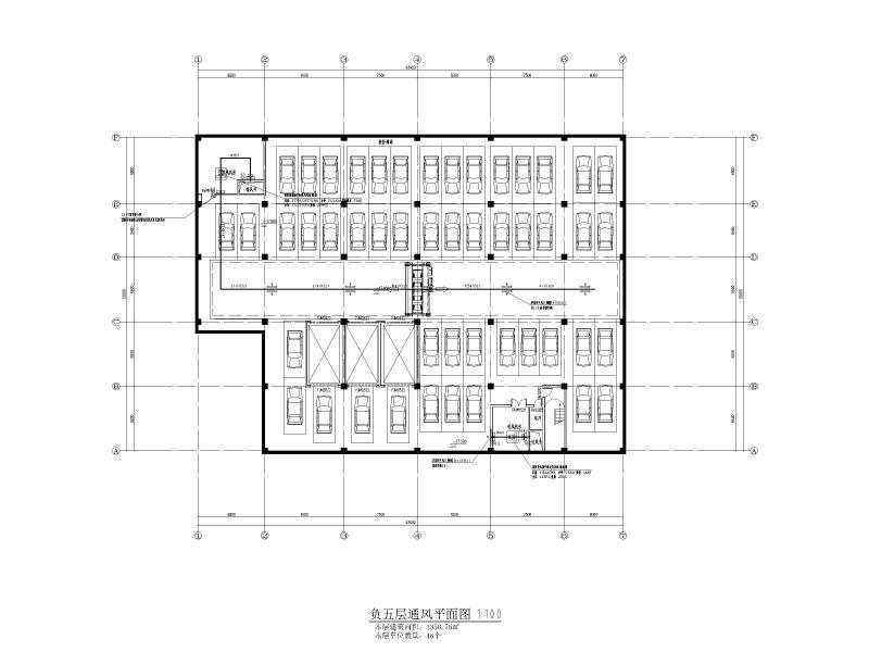
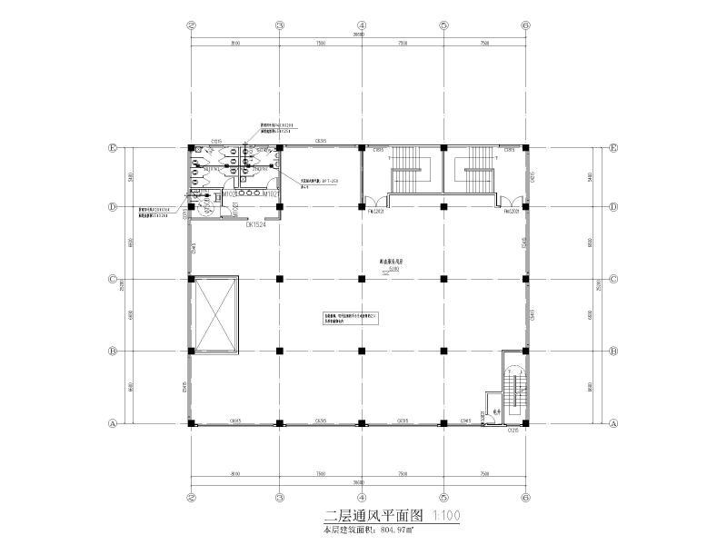
5层新建立体停车库通风系统设计施工图纸2020
- 发布时间:2021-12-06
- 评论次数:0
- 浏览次数:0
- 文件大小:7.85 MB
- 收藏次数:0
- 
								文件名称: 附件-996996559997585557.dwg 附件-996996559997585557.dwg
								立体停车库设计图纸下载
							
						- 新建立体停车库建筑
- 巷道堆垛类机械式地下立体停车库建筑CAD图纸
- 新建立体停车库电气平面图
- 5层现代风格立体停车库建筑设计CAD施工图纸(知名建筑事务所)(混凝土框架)
- 框架涵立体CAD设计图纸
- 大厅形象墙(立体)、吊顶龙骨结构(立体)、厕所立面(给排)、石材电梯门套(立体)结构节点构造详细设计CAD图纸
- 大厅形象墙(立体)、吊顶龙骨结构(立体)、厕所立面(给排)、石材电梯门套(立体)结构节点构造详细设计CAD图纸
- 公司立体车库结构CAD图纸
- 机房防雷接地立体CAD图纸
- 泵站3d立体CAD图纸
- 鉴湖路停车库建筑施工CAD图纸设计
- 立体绿化景观设计方案_CAD
- 机械式停车库电气设计.dwg
- 雕塑花坛入口花坛立体花坛详图纸
- 5层立体车库建筑CAD施工图纸
- 弱电机房防雷立体接线示意CAD图纸
- 5层立体车库建筑施工CAD图纸
- 办事中心停车库绿化招标施工图纸
- 地下室机械停车库电气图纸.dwg
- 升降横移式立体车库结构设计施工图纸
全部评论
						
							评论网友评论仅友表达个人看法,并不表明本站同意其观点,不得发布违反法律法规的内容!
						
						
 
	              	 
	              	 
	              	 
	              	 
	              	