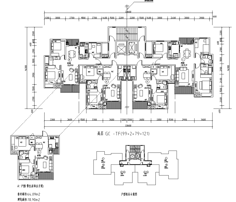
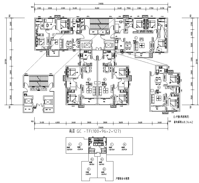
19-34层二梯四户户型图纸设计
- 发布时间:2021-12-06
- 评论次数:0
- 浏览次数:0
- 文件大小:1.92 MB
- 收藏次数:0
- 
								文件名称: 附件-996500997005586007.dwg 附件-996500997005586007.dwg
								户型设计图纸下载
							
						- 高层户型CAD图纸-四室户户型设计
- 高档住宅一梯四户型平面图纸(、四户及以上)
- 对称型一梯四户型平面图纸,共8张.dwg
- 对称型一梯四户型平面CAD图纸
- 二梯四户户型图纸设计(分离核心筒)
- 二梯四户户型平面图纸设计_cad平面图
- 二梯四户型端户型图纸设计
- 板式多层一梯四户户型图纸(77/48/48/66).dwg
- 塔式高层一梯四户户型图纸(155/139/83/83).dwg
- 塔式高层一梯四户户型图纸.dwg
- 塔式高层一梯四户户型图纸.dwg
- 板式多层一梯四户户型图纸.dwg
- 塔式高层一梯四户户型图纸.dwg
- 板式高层一梯四户户型图纸.dwg
- 塔式高层一梯四户户型图纸.dwg
- 塔式高层一梯四户户型图纸.dwg
- 塔式高层一梯四户户型图纸.dwg
- 塔式高层一梯四户户型图纸.dwg
- 塔式高层一梯四户户型图纸.dwg
- 板式多层一梯四户户型图纸.dwg
全部评论
						
							评论网友评论仅友表达个人看法,并不表明本站同意其观点,不得发布违反法律法规的内容!
						
						
 
	              	 
	              	 
	              	 
	              	 
	              	