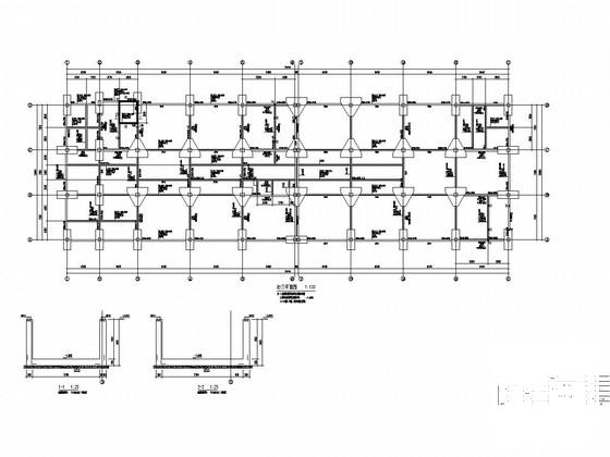
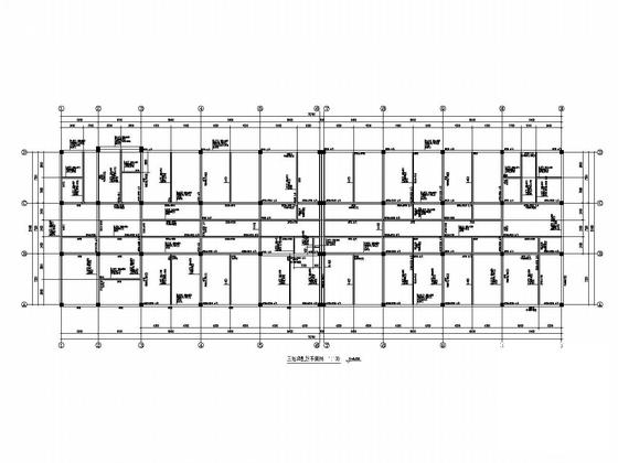
两栋3层框架结构辅助用房结构设计施工大样图
- 发布时间:2021-12-05
- 评论次数:0
- 浏览次数:0
- 文件大小:1.53 MB
- 收藏次数:0
- 
								文件名称: 附件-995888979775859778775.zip 附件-995888979775859778775.zip
								施工设计大样图下载
							
						- 两栋3层沿街商业及辅助用房结构施工大样图
- 带辅助用房钢结构厂房图纸.
- 4层框架结构厂房(辅助用房)结构CAD施工图纸(桩基础)
- 4层框架结构厂房(辅助用房)结构CAD施工图纸
- 公司厂房及辅助用房施工组织设计
- 锅炉房及辅助用房CAD施工图纸
- 生产车间辅助用房建筑结构施工图纸.
- 2层酒楼改造新增辅助用房结构设计施工图纸
- 工业辅助用房职工宿舍结构设计CAD施工图纸
- 2栋3层沿街商业及辅助用房结构CAD施工大样图(建筑大样图)
- 框排架厂房及辅助用房结构设计方案CAD图纸
- 3层L型框架结构幼儿园活动室及辅助用房结构施工图纸
- 6层框架结构工业辅助用房职工宿舍楼CAD施工图纸
- 两层框架结构观光旅游园办公辅助用房结构CAD施工图纸
- 3层框架结构工厂辅助车间及设备用房结构CAD施工图纸
- 框架结构锅炉房及辅助用房施工图纸,含设计说明.dwg
- 机务用房4层框架结构设计CAD施工大样图
- 两层木结构商务楼辅助用房结构设计施工图纸
- 单层门式刚架生产车间辅助用房建筑结构施工图纸
- 6层欧式现代小区辅助用房建筑施工图纸(6号楼)
全部评论
						
							评论网友评论仅友表达个人看法,并不表明本站同意其观点,不得发布违反法律法规的内容!
						
						
 
	              	 
	              	 
	              	 
	              	 
	              	