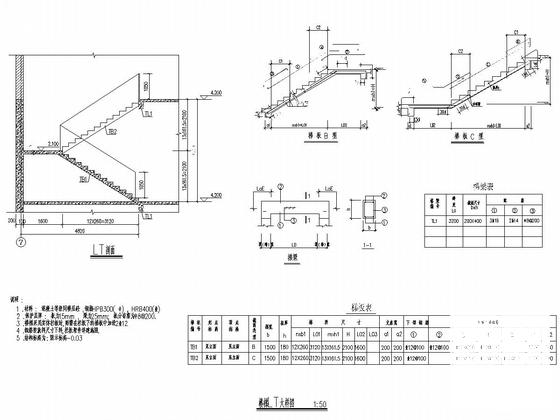
两层框剪结构咖啡吧结构设计施工大样图
- 发布时间:2021-12-05
- 评论次数:0
- 浏览次数:0
- 文件大小:1.73 MB
- 收藏次数:0
-
文件名称:
附件-995888089655865697755.rar
框剪结构设计下载
- 两层框剪结构咖啡吧结构CAD施工大样图(pkpm计算书)
- 两层框剪结构地下室结构CAD施工大样图
- 两层框剪地下车库结构设计施工图纸
- 框剪住宅结构大样图
- 框剪结构住宅楼结构设计施工大样图
- 31层框剪结构住宅结构设计CAD施工大样图
- 国内框剪结构CAD施工大样图
- 两层框剪结构地下室结构CAD施工图纸
- 两层框剪结构商住楼结构CAD施工图纸
- 框剪多层住宅结构设计CAD施工大样图
- 框剪住宅结构设计CAD施工大样图
- 18层框剪结构设计CAD施工大样图
- 6层框剪住宅结构设计CAD施工大样图
- 框剪结构设计、配合施工的体会
- 框剪结构住宅结构设计说明
- 5层框剪结构大学大样图书馆结构设计施工大样图
- 异形柱框剪结构CAD大样图
- 框剪住宅结构设计CAD图纸
- 高层框剪酒店结构设计说明
- 框剪住宅结构设计总说明
全部评论
评论网友评论仅友表达个人看法,并不表明本站同意其观点,不得发布违反法律法规的内容!
