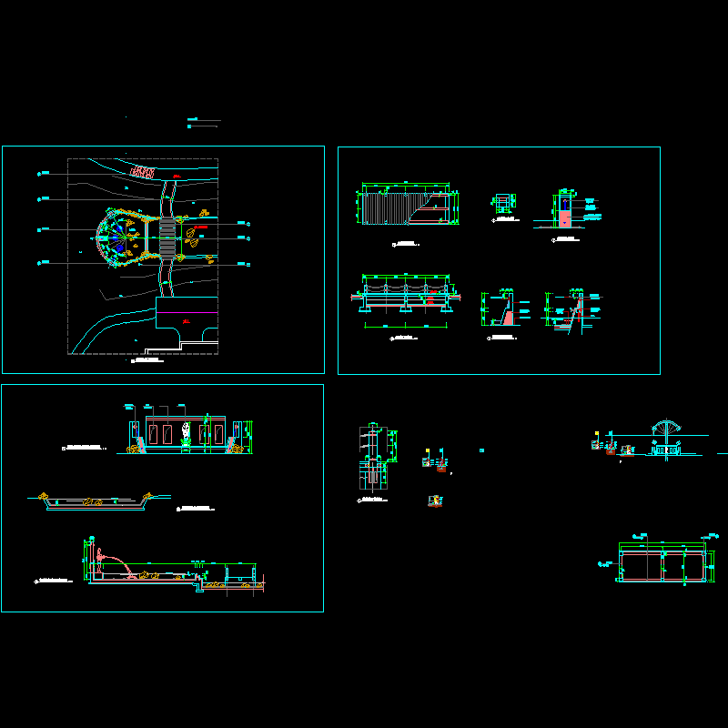
喷水景墙和喷泉CAD施工图纸
- 发布时间:2023-12-28
- 评论次数:0
- 浏览次数:0
- 文件大小:0.46 MB
- 收藏次数:0
-
文件名称:
附件-995798580987979570.rar
相关下载
- 11种喷泉和旱喷CAD施工图纸
- 喷泉水景施工CAD详图纸
- 市水景喷泉施工详细设计CAD图纸
- 喷泉水景给排水施工详细设计CAD图纸
- 现代水景喷泉设计CAD施工图纸
- 圆形喷泉式特色水景CAD施工图纸.dwg
- 精选水景喷泉施工CAD图纸(25套)
- 跌水景墙水景
- 经典现代简欧风格-喷泉水景景墙CAD详大样图设计
- 方形跌水喷泉水景设计CAD详图纸
- 圆形花钵喷泉水景设计CAD详图纸
- 水景喷泉设计CAD详图纸——泛亚景观
- 半圆水景喷泉CAD详图纸设计——泛亚景观
- 特色广场水景喷泉设计CAD详图纸
- 欧式花钵喷泉水景设计CAD详图纸
- 水景喷泉工程各种水型加工CAD图纸
- 公司正门水池喷泉水景CAD图纸
- 小区水景跌水喷泉水施CAD图纸
- 水景喷泉电气系统图(11页图纸)
- 喷泉和经典盆景大样图纸
全部评论
评论网友评论仅友表达个人看法,并不表明本站同意其观点,不得发布违反法律法规的内容!
