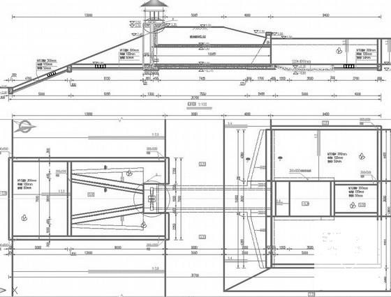
退水闸全套竣工CAD大样图
- 发布时间:2023-12-28
- 评论次数:0
- 浏览次数:0
- 文件大小:0.24 MB
- 收藏次数:0
- 
								文件名称: 附件-995798895796557677.rar 附件-995798895796557677.rar
								相关下载
							
						- 退水闸全套竣工CAD大样图
- 水闸竣工CAD图纸(放水闸)
- 水闸竣工图纸(放水闸设计)(CAD平面图)
- 水闸全套CAD图纸
- 水闸施工全套CAD图纸
- 水闸全套设计CAD图纸.dwg
- 水闸施工全套设计CAD图纸.dwg
- 江津28层小区全套竣工CAD大样图
- 排水闸工程全套CAD施工大样图
- 退台墙身泛水详图纸
- 水闸拆除重建全套CAD施工图纸.dwg
- 水闸枢纽工程竣工CAD施工图纸(橡胶坝冲砂闸)
- 四季红进水闸灭螺工程竣工CAD图纸
- 53个混凝土墙节点大样图及退台墙身泛水详图
- 市政拱桥竣工全套CAD图纸
- 厂房全套电气竣工CAD图纸
- 大厦全套给排水竣工CAD图纸
- 大厦全套给排水竣工CAD图纸
- 大厦全套给排水竣工CAD图纸
- 污水闸门井CAD大样图纸(混凝土)
全部评论
						
							评论网友评论仅友表达个人看法,并不表明本站同意其观点,不得发布违反法律法规的内容!
						
						
 
	              	 
	              	 
	              	