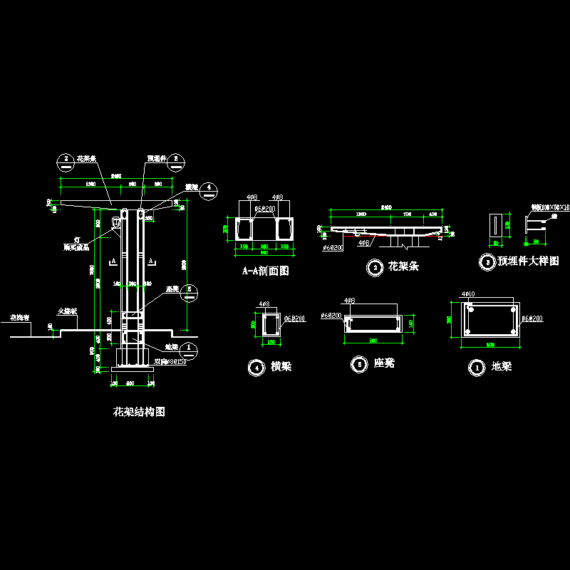
园林花架施工CAD详图纸7例
- 发布时间:2023-12-28
- 评论次数:0
- 浏览次数:0
- 文件大小:1.43 MB
- 收藏次数:0
-
文件名称:
附件-995798855708805579.rar
相关下载
- 园林花架施工CAD图纸(花架横梁顶面埋件)
- 特色景观花架施工CAD详大样图
- 花架廊施工CAD详大样图
- 公园花架亭施工CAD详大样图
- 圆形单柱花架施工CAD详大样图
- 花园园林花架施工详细设计CAD图纸
- 园林花架施工详细设计CAD图纸5例
- 园林花架施工CAD详图纸5例
- 园林花架CAD施工图纸22例
- 园林管理房设计CAD详施工图纸
- 酒店公寓花架CAD详大样图
- 室外园林景观泳池CAD详大样图
- 两套木质花架施工CAD详大样图
- 花架CAD施工大样图节点详大样图
- 花架CAD施工大样图节点详大样图
- 小区园林景观CAD施工图_给排水,花架施工大样图
- 园林给排水标准构造CAD图纸集|绿化地装饰井盖详
- 弧形花架施工CAD图纸(花架顶平面图纸)
- 花架施工CAD图纸(花架条平面及配筋)
- 花架施工CAD图纸
全部评论
评论网友评论仅友表达个人看法,并不表明本站同意其观点,不得发布违反法律法规的内容!
