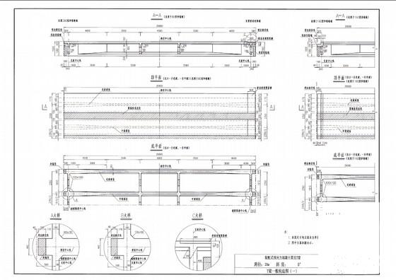
整体式路基24.5m宽20m简支T梁通用设计图纸(60余张)
- 发布时间:2023-12-28
- 评论次数:0
- 浏览次数:0
- 文件大小:7.23 MB
- 收藏次数:0
-
文件名称:
附件-995798869756759599.zip
相关下载
- 分离式路基24.5m宽20m简支T梁通用设计图纸(60余张)
- 整体式路基33.5m宽20m简支T梁通用设计图纸(60余张)
- 整体式路基34.5m宽20m简支T梁通用设计图纸(60余张)
- 整体式路基28m宽20m简支T梁通用设计图纸(60余张)
- 整体式路基26m宽20m简支T梁通用设计图纸(60余张)
- 整体式路基23m宽20m简支T梁通用设计图纸(60余张)
- 分离式路基26m宽20m简支T梁通用设计图纸(60余张)
- 分离式路基34.5m宽20m简支T梁通用设计图纸(60余张)
- 分离式路基33.5m宽20m简支T梁通用设计图纸(60余张)
- 分离式路基28m宽20m简支T梁通用设计图纸(60余张)
- 分离式路基23m宽20m简支T梁通用设计图纸(60余张)
- 预应力25m简支T梁通用图纸(先简支后连续路基宽24.5).dwg
- 30米T梁通用图纸(24.5m路基)
- 先简支后连续T梁下部构造通用图纸(30张).dwg
- 20m普通钢筋先简支后连续T梁设计CAD图纸
- 预应力30m简支T梁桥通用图纸(24.5米路基先简支后连续).dwg
- 35米简支T梁支座
- 装配式预应力混凝土T梁桥(先简支后结构连续)上部构造通用CAD图纸[跨径:20m,桥面宽度:整体式路基23]
- 装配式预应力混凝土T梁桥(先简支后结构连续)上部构造通用CAD图纸[跨径:20m,桥面宽度:整体式路基28]
- 装配式预应力混凝土T梁桥(先简支后结构连续)上部构造通用CAD图纸[跨径:20m,桥面宽度:整体式路基26]
全部评论
评论网友评论仅友表达个人看法,并不表明本站同意其观点,不得发布违反法律法规的内容!
