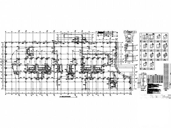
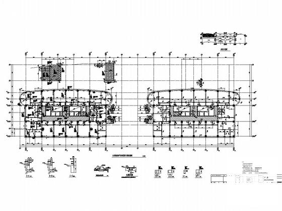
双栋地上27层剪力墙结构公寓楼结构施工图纸
- 发布时间:2021-12-05
- 评论次数:0
- 浏览次数:0
- 文件大小:8.43 MB
- 收藏次数:0
-
文件名称:
附件-995887879976587906507.zip
剪力墙结构公寓下载
- 地上27层框架剪力墙结构公寓楼结构CAD施工图纸
- 地上27层剪力墙结构公寓楼结构CAD施工图纸.dwg
- 三栋地上多层框架结构公寓楼结构设计施工图纸
- 两栋地上3层框架结构公寓楼结构设计施工图纸
- 三栋地上18层剪力墙结构住宅楼结构施工图纸
- 两栋26层剪力墙结构住宅楼地上部分结构施工图纸
- 两栋地上18层剪力墙结构住宅楼结构施工图纸
- 两栋地上17层剪力墙结构住宅楼结构施工图纸
- 两栋地上8层框架剪力墙结构办公大厦结构施工图纸
- 两栋地上17层剪力墙结构住宅楼结构CAD施工图纸
- 两栋地上18层剪力墙结构住宅楼结构CAD施工图纸
- 两栋地上32层框支剪力墙结构住宅楼结构CAD施工图纸
- 两栋地上11层框架剪力墙结构住宅楼结构CAD施工图纸.dwg
- 两栋地上11层框架剪力墙结构安置楼房结构CAD施工图纸.dwg
- 两栋地上6层剪力墙结构住宅楼结构CAD施工大样图
- 地上7层框架结构公寓楼结构设计施工图纸
- 地上5层框架结构公寓楼结构设计施工图纸
- 地上7层框架结构公寓楼结构施工图纸
- 地上7层框架结构公寓楼结构CAD施工图纸
- 地上6层框架结构公寓楼结构CAD施工图纸
全部评论
评论网友评论仅友表达个人看法,并不表明本站同意其观点,不得发布违反法律法规的内容!
