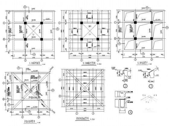
4层山地公园框架结构了望塔结构施工大样图
- 发布时间:2021-12-05
- 评论次数:0
- 浏览次数:0
- 文件大小:1.05 MB
- 收藏次数:0
- 
								文件名称: 附件-995888967598659668850.rar 附件-995888967598659668850.rar
								相关下载
							
						- 了望塔全套CAD施工图纸
- 艺术园了望塔全套CAD施工图纸
- 2层框架结构山地别墅结构施工图纸
- 公园大门木结构大样图.
- 山地旅馆设计
- 国内公园观音像框架结构设计CAD施工大样图
- 依山地地形钢结构别墅CAD施工图纸()
- 3层框架结构体育公园用房结构施工图纸
- 单层框架结构公园管理用房结构设计施工图纸
- 公园茶社钢框架结构CAD施工图纸(异形结构)
- 6层框架结构体育公园会所结构CAD施工图纸
- 公园茶社钢框架结构CAD施工图纸(异形结构)(檩条安装)
- 单层框架结构公园管理用房结构CAD施工图纸(建筑图纸)
- 两层框架结构公园管理用房结构CAD施工图纸
- 6层框架结构体育公园会所结构CAD施工图纸
- 小区山体公园护坡CAD施工大样图
- 公园星座雕塑设计CAD施工大样图
- 公园花架亭施工CAD详大样图
- 公园景观工程CAD施工大样图
- 公园公厕施工CAD详大样图
全部评论
						
							评论网友评论仅友表达个人看法,并不表明本站同意其观点,不得发布违反法律法规的内容!
						
						
 
	              	 
	              	 
	              	 
	              	