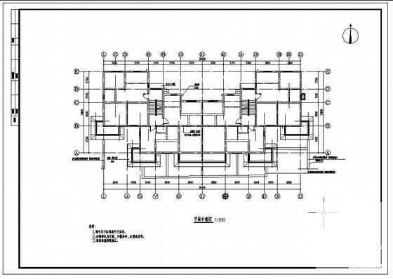
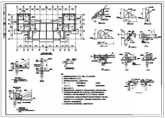
地上6层平改坡木结构设计施工图纸,共11张施工图纸
- 发布时间:2021-12-05
- 评论次数:0
- 浏览次数:0
- 文件大小:0.43 MB
- 收藏次数:0
- 
								文件名称: 附件-995877869059795079678.rar 附件-995877869059795079678.rar
								木结构结构施工图下载
							
						- 6层平改坡木结构设计方案CAD施工图纸
- 住宅楼平改坡结构设计施工图纸(地上1层,共5张)
- 平改坡结构设计施工图纸(钢桁架结构,共5张)
- 地上1层平改坡结构设计施工图纸
- 平改坡结构设计图纸,共6张图纸
- 平改坡结构CAD图纸
- 7层砌体结构住宅楼平改坡结构设计施工图纸,共12张
- 木结构仿古建筑书斋建筑施工方案图纸,共4张图纸
- 旧楼改造施工方案(平改坡)
- 结构平改坡加固设计说明
- 平改坡屋面结构设计.pdf
- 木结构基础图纸_木结构别墅
- 平改坡结构图纸(结构施工说明)
- 平改坡节点详图纸平面图
- 钢结构平改坡屋面全CAD图纸
- 平改坡钢结构屋面节点构造详细设计CAD图纸
- 钢结构门面房设计施工图纸(地上1层,共12张)
- 钢结构别墅结构设计施工图纸(地上3层,共10张)
- 地上2层活动房结构设计施工图纸,共38张
- 地上1层餐厅加固改造设计施工图纸,共5张
全部评论
						
							评论网友评论仅友表达个人看法,并不表明本站同意其观点,不得发布违反法律法规的内容!
						
						
 
	              	 
	              	 
	              	