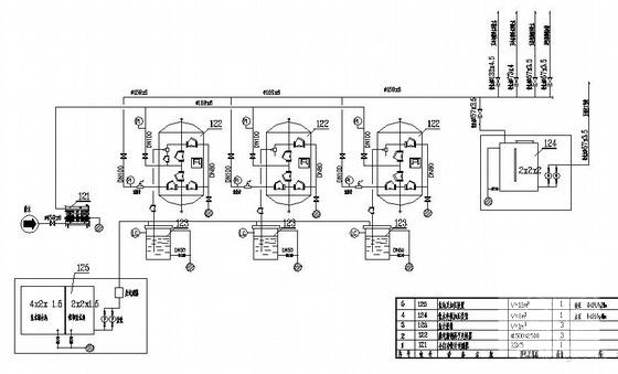
厂全自动多阀软化水系统流程施工图纸
- 发布时间:2023-12-28
- 评论次数:0
- 浏览次数:0
- 文件大小:0.99 MB
- 收藏次数:0
- 
								文件名称: 附件-995870796588787557.rar 附件-995870796588787557.rar
								相关下载
							
						- 160t/h全自动软化水制备工艺CAD施工图纸
- 电子厂净化系统流程CAD图纸
- 全自动热水锅炉房设备平面及流程CAD图纸
- 大型生产厂房暖通空调系统设计CAD施工图纸(流程图纸多)
- 铝模板施工工艺流程介绍(多图纸).
- 电子厂高纯水系统工艺流程CAD施工图纸
- 电动阀、电磁阀、排空阀电气原理CAD图纸
- 水泥厂工艺流程CAD图纸
- 3层大型生产厂房暖通空调全套系统设计施工CAD图纸(流程图纸多)
- 游泳池系统流程图纸
- 蓄冰空调系统流程CAD图纸
- 电厂脱硫系统流程CAD图纸
- 热力站系统流程CAD图纸
- 空调机房系统流程CAD图纸
- 软化水箱和生活热水水箱大样CAD图纸
- 高压调节阀和压差调节阀的结构格式图纸
- 洁净室系统流程设计CAD施工图纸,
- 热水系统流程设计施工图纸.dwg
- 减压阀CAD详图纸
- 防火阀设计电气CAD图纸
全部评论
						
							评论网友评论仅友表达个人看法,并不表明本站同意其观点,不得发布违反法律法规的内容!
						
						
